ОСТАВАТ
00часа
00мин.
00сек.
до големите отстъпки на
Ден за разпродажби

Продава 2-СТАЕН, гр. Бургас, Зорница → Обява 53320154

Продава 2-СТАЕН, гр. Бургас, Зорница, снимка 1 - Апартаменти - 53320154 1/1
Продава 2-СТАЕН, гр. Бургас, Зорница
гр. Бургас, Зорница Наблюдавай

Публикувана/обновена на 02 февруари в 13:02 ч.


Тип апартамент
2-стаен
Квадратура
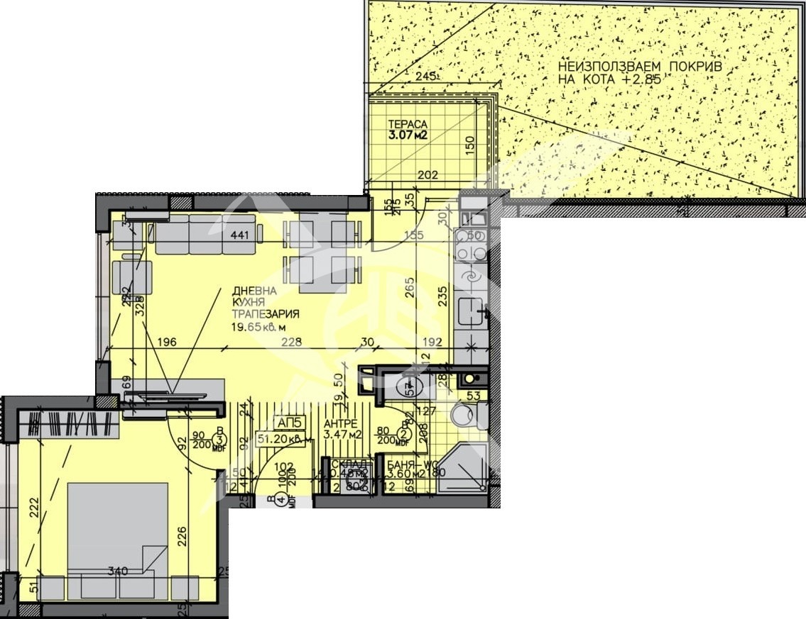
86 кв. м.
Цена на кв.м.
1709 €/кв. м.
Вид строителство
Тухла
Eтаж
2
Година
2026
Компания Х представя на Вашето внимание двустаен апартамент в квартал Зорница

МЕСТОПОЛОЖЕНИЕ: Квартал Зорница е един от модерните и предпочитани за живеене райони в град Бургас. Разположен е в близост до Морската градина и езерото Вая, което осигурява красиви гледки и удобен достъп до зелени площи и места за разходка. Зорница е добре уреден квартал с множество магазини, спортни съоръжения и спирки на градския транспорт, а спокойната му среда го прави подходящ както за семейства, така и за млади хора.

РАПРЕДЕЛЕНИЕ: Апартаментът разполага с площ от 86 кв.м., функционално разпределени в спалня, хол с кухненски бокс, антре и санитарен възел, мокро помещение и тераса.

СЪСТОЯНИЕ: Жилището се предлага в строеж, което предлага на новите собственици да създадат своя нов дом придавайки му индивидуалност и стил, чрез собствен почерк.

Заповядайте да Ви го покажем. Използвайки нашите услуги Вие ще превърнете закупуването на новия си дом в едно приятно изживяване, ще получите персонален консултант, съдействие при кандидатстване за кредит от всички банки в България, интериорни дизайнери и екип, който да се погрижи за нужните документи по Вашата сделка. На Ваше разположение сме всеки ден, от понеделник до неделя от 09:00 до 20:00ч. Възползвайте се от безплатна консултация в наш офис, където ще ви спестим време и ще ви запознаем с всички актуални имоти в България, отговарящи на Вашето търсене. Нужен Ви е кода към имота: Сграда 1324 - 37683
Преглеждания: 10
Другите търсят също
Препоръчани за теб
Цена:
147 000 € 287 507,01 лв
Цената е с включен ДДС