Продава ПАРЦЕЛ, гр. София, с. Лозен → Обява 53389360

Продава ПАРЦЕЛ, гр. София, с. Лозен, снимка 1 - Парцели - 53389360 Продава ПАРЦЕЛ, гр. София, с. Лозен, снимка 2 - Парцели - 53389360 1/2
Продава ПАРЦЕЛ, гр. София, с. Лозен
гр. София, с. Лозен Наблюдавай

Публикувана/обновена на 07 февруари в 09:25 ч.


Квадратура
4036 кв. м.
Цена на кв.м.
85 € кв. м.
Ток
Да
Вода
Да
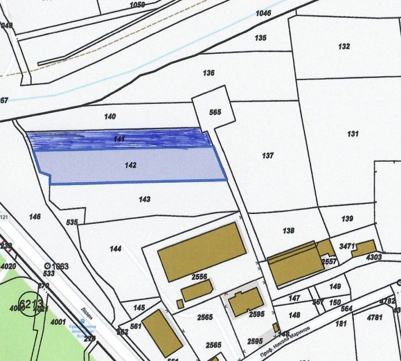
Поземлен имот, находящ се в стопанският двор на с. Горни Лозен, в близост до ул. Съединение. Имота се състои от три съседни имота, които могат да се обединят. Подходящ за промишлена дейност.АГЕНЦИЯТА РАЗПОЛАГА С АКТУАЛНА ИНФОРМАЦИЯ ЗА ВСИЧКИ ЦЕНИ И ОФЕРТИ В РАЙОНА НА с. ГОРНИ И ДОЛНИ ЛОЗЕН. АГЕНЦИЯТА РАБОТИ БЕЗ ПОЧИВЕН ДЕН И БЕЗ ПАРИ ЗА ОГЛЕДИ. Брокер: Томина Стайкова : GSM 0899910875, За повече информация: www.lozen.bg. В СЕЛОТО НЯМА РОМСКА МАХАЛА.
Преглеждания: 67
Другите търсят също
Препоръчани за теб
Цена:
343 060 € 670 967,04 лв
Не се начислява ДДС