Продава 3-СТАЕН, гр. Пловдив, Беломорски → Обява 53452125

Продава 3-СТАЕН, гр. Пловдив, Беломорски, снимка 1 - Апартаменти - 53452125 Продава 3-СТАЕН, гр. Пловдив, Беломорски, снимка 2 - Апартаменти - 53452125 1/2
Продава 3-СТАЕН, гр. Пловдив, Беломорски
гр. Пловдив, Беломорски Наблюдавай

Публикувана/обновена днес в 01:24 ч.


Тип апартамент
3-стаен
Квадратура
106 кв. м.
Цена на кв.м.
1194 €/кв. м.
Вид строителство
Тухла
Eтаж
2
Година
2028
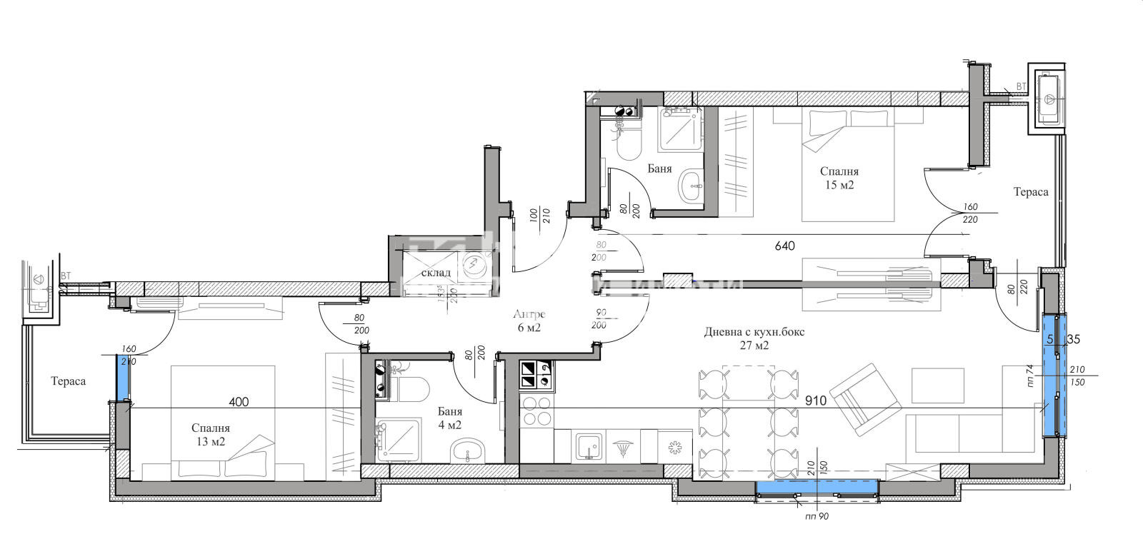
Оферта 68772 - Новоизграждащ се жилищен комплекс кв. Беломорски Представяме ви тристаен апартамент в новоизграждащ се жилищен проект в предпочитания квартал Беломорски, състоящ се от две самостоятелни сгради по 6 етажа, проектирани с фокус върху комфорт, функционалност и спокойна жилищна среда. Състои се от югоизточна ъглова дневна 27кв.м. с трапезария и куненски бокс, две самостоятелниа спални: родителска спалня 15.15кв.м. със собтвена баня, детска стая 13кв.м., втора баня с тоалетна, входно антре с място за гардероб и перално и две тераси. Комплексът предлага: Едностайни, Двустайни и Тристайни апартаменти с правилни форми и оптимално разпределение. Озеленени общи пространства, създаващи усещане за уют и хармония. Външни паркоместа за удобство на живущите. Партерни гаражи с лесен достъп. Сградите ще бъдат изпълнени с качествени материали, модерна архитектура и добре поддържани общи части. Локацията осигурява бърз достъп до основни пътни артерии, магазини, училища и градски удобства, като същевременно запазва тиха и зелена атмосфера. Имотите са отличен избор както за собствен дом, така и за дългосрочна инвестиция.

Преглеждания: 104
Другите търсят също
Препоръчани за теб
Цена:
126 610 € 247 627,64 лв
Цената е с включен ДДС