Продава 3-СТАЕН, гр. Варна, Кайсиева градина → Обява 53507682

Продава 3-СТАЕН, гр. Варна, Кайсиева градина, снимка 1 - Апартаменти - 53507682 Продава 3-СТАЕН, гр. Варна, Кайсиева градина, снимка 2 - Апартаменти - 53507682 Продава 3-СТАЕН, гр. Варна, Кайсиева градина, снимка 3 - Апартаменти - 53507682 Продава 3-СТАЕН, гр. Варна, Кайсиева градина, снимка 4 - Апартаменти - 53507682 1/4
Продава 3-СТАЕН, гр. Варна, Кайсиева градина
гр. Варна, Кайсиева градина Наблюдавай

Публикувана/обновена днес в 13:56 ч.


Тип апартамент
3-стаен
Квадратура
114 кв. м.
Цена на кв.м.
1351 €/кв. м.
Вид строителство
Тухла
Eтаж
5
Година
2027
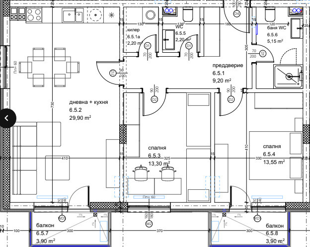
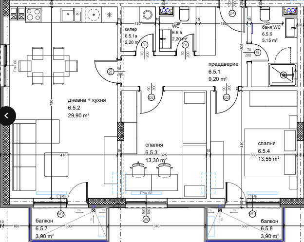
ЕРА Вива продава тристаен апартамент в новострояща се сграда в кв. Кайсиева Градина, гр. Варна. Имотът е със застроена площ от 95.30 кв.м. /114.09 кв.м. с общите части/ и е разположен на пети от общо дванадесет етажа. Състои се от входно антре /9.2 кв.м./, просторна и слънчева дневна с кухня и трапезария /30 кв.м./, две големи спални /13 и 13.5 кв.м./, две бани с тоалетни /5.15 и 2.2 кв.м./ и два балкона /всеки по 3.9 кв.м./. Жилището ще бъде издадено по БДС - на шпакловка и замазка, с поставена ПВЦ дограма и блиндирана входна врата.

Нова и модерна сграда с качествено изпълнение и съвременна фасада. REHAU дограма с троен стъклопакет, асансьори Schindler, стилни общи части с гранит и стъклени парапети. Възможност за закупуване на външно или подземно паркомясто. Предлагат се двустайни и тристайни апартаменти с възможност за обединение.

Отлична локация. Район с много добре изградена инфраструктура. На 200 м от магазин Алати и бул. 3-ти март . В близост до множество главни пътни артерии и спирки на градския транспорт.

---
ЕРА Вива продава тристаен апартамент в новострояща се сграда в кв. Кайсиева Градина, гр. Варна
Преглеждания: 3
Другите търсят също
Препоръчани за теб
Цена:
154 024 € 301 244,76 лв
Цената е с включен ДДС