Продава 3-СТАЕН, гр. София, Витоша → Обява 53520685

Продава 3-СТАЕН, гр. София, Витоша, снимка 1 - Апартаменти - 53520685 Продава 3-СТАЕН, гр. София, Витоша, снимка 2 - Апартаменти - 53520685 Продава 3-СТАЕН, гр. София, Витоша, снимка 3 - Апартаменти - 53520685 Продава 3-СТАЕН, гр. София, Витоша, снимка 4 - Апартаменти - 53520685 Продава 3-СТАЕН, гр. София, Витоша, снимка 5 - Апартаменти - 53520685 1/5
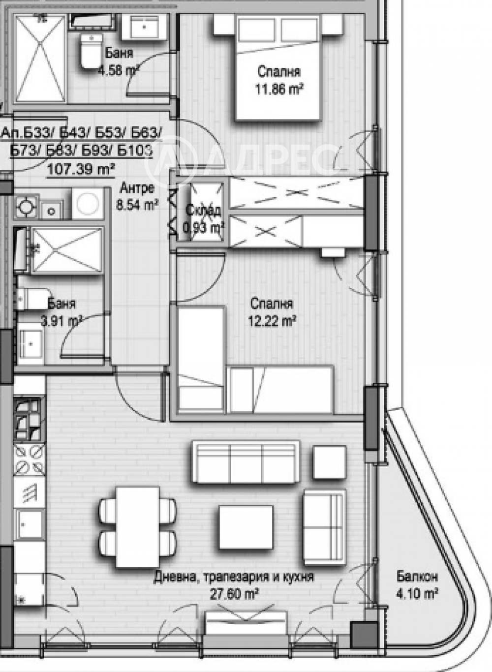
Продава 3-СТАЕН, гр. София, Витоша
гр. София, Витоша Наблюдавай

Публикувана/обновена на 18 февруари в 13:21 ч.


Тип апартамент
3-стаен
Квадратура
107 кв. м.
Цена на кв.м.
3112 €/кв. м.
Вид строителство
Тухла
Eтаж
6
Година
2026
Тристаен апартамент с площ от 107 кв.м. ,състоящ се от антре, голяма дневна с кухненски бокс, две спални, две бани с тоалетни и тераса .

Този тристаен апартамент е чудесен избор за хора, които търсят комфортно и стилно жилище с удобна локация и невероятна гледка!

Цената е без ДДС.
Сградите са разположени в един от най-атрактивните и бързо развиващи се райони на града, осигуряващ бърз достъп до основните транспортни артерии на столицата, както и непосредствена близост до автобусни спирки, детски градини и училища.
Сградите се отличават с елегантна архитектура съчетана с естествени материали от високо качество и произведени от лидери на световния пазар.
Този уютен двустаен апартамент се намира в спокоен и приветлив район, което го прави идеален избор за комфортно живеене. Изложението е южно, което осигурява много светлина и топлина през целия ден.
Обади се сега и цитирай този код 639701
Преглеждания: 52
Другите търсят също
Препоръчани за теб
Цена:
333 000 € 651 291,39 лв
Цената е без ДДС