ОСТАВАТ
00часа
00мин.
00сек.
до големите отстъпки на
Ден за разпродажби

Продава 2-СТАЕН, гр. София, Овча купел → Обява 53594979

Продава 2-СТАЕН, гр. София, Овча купел, снимка 1 - Апартаменти - 53594979 Продава 2-СТАЕН, гр. София, Овча купел, снимка 2 - Апартаменти - 53594979 1/2
Продава 2-СТАЕН, гр. София, Овча купел
гр. София, Овча купел Наблюдавай

Публикувана/обновена днес в 16:49 ч.


Тип апартамент
2-стаен
Квадратура
62 кв. м.
Цена на кв.м.
1823 €/кв. м.
Вид строителство
Тухла
Eтаж
2
Година
2028
ЧУДЕСЕН НОВ ДОМ ИЛИ СУПЕР ИНВЕСТИЦИЯ! НАЙ-ДОБРАТА ЦЕНА ЗА РАЙОНА! 300метра от метростанция 'ГОРНА БАНЯ'!

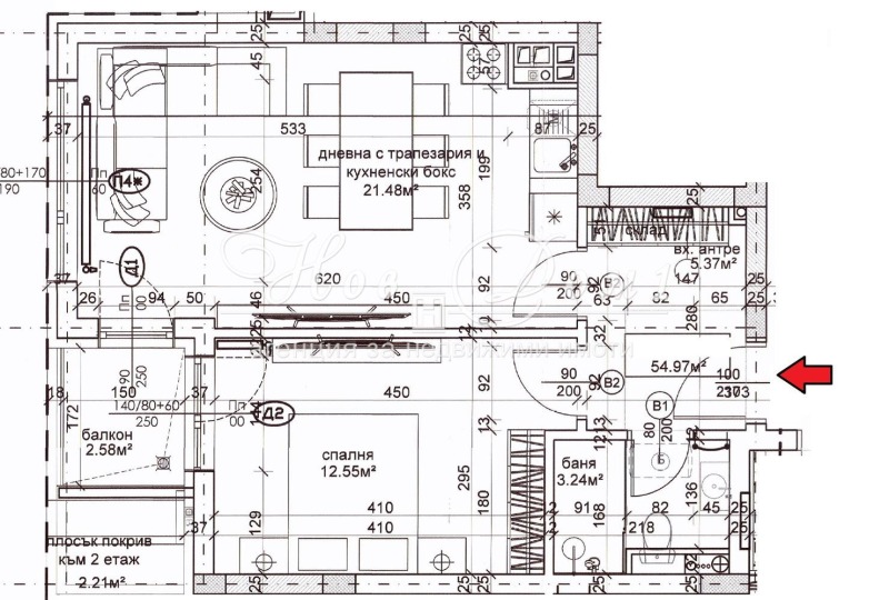
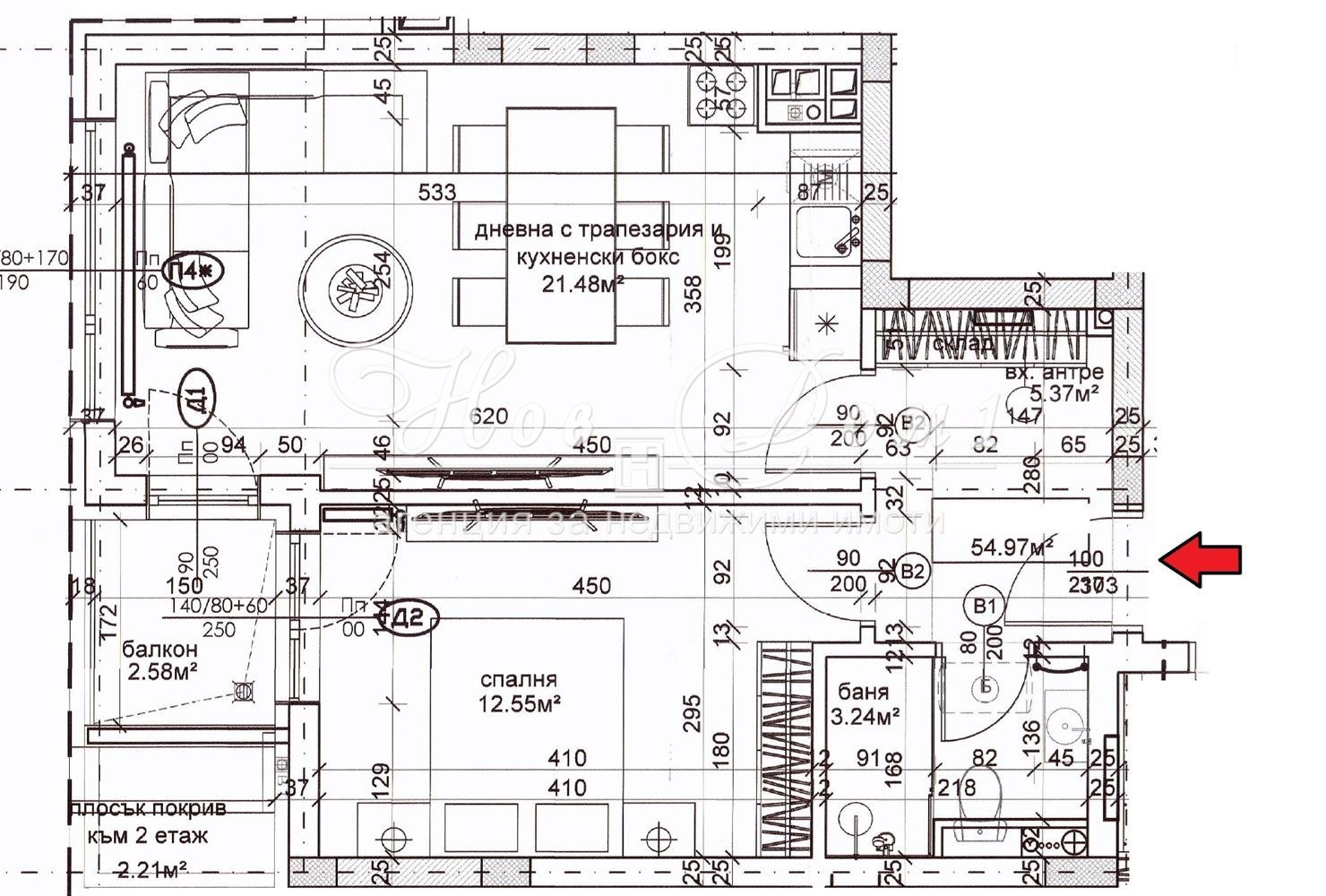
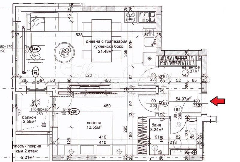
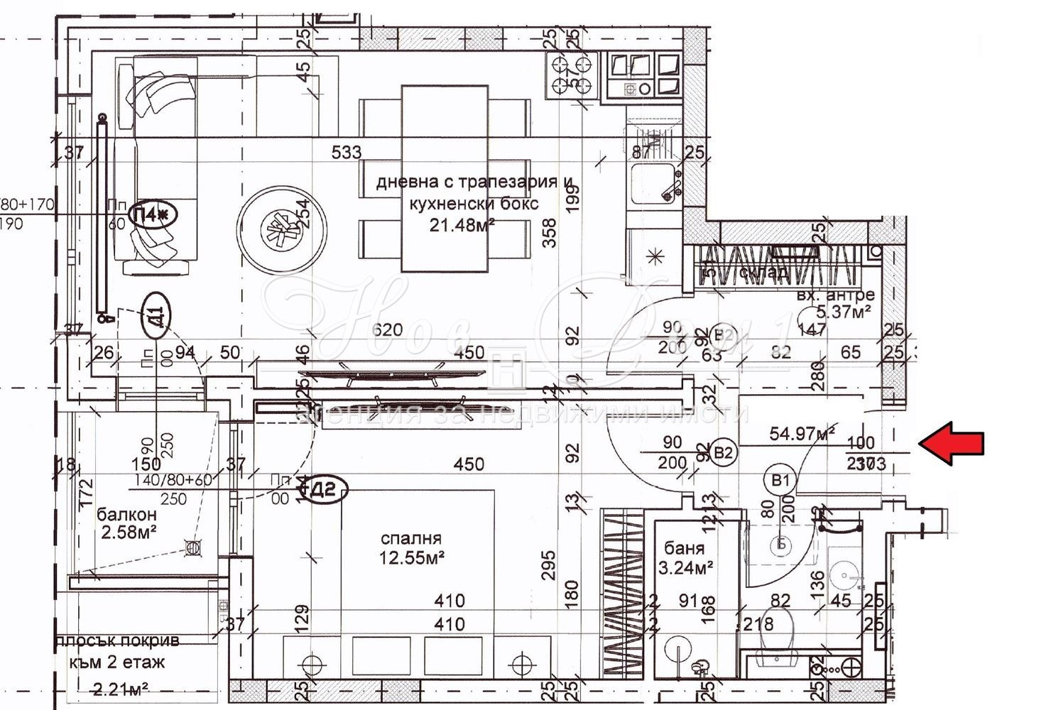
Имотът представлява: голямо входно антре с място за вграден гардероб, Дневен тракт + Кухненски бокс около 22кв.м., Спалня около 13кв.м. обща Тераса с излаз от двете стаи, Баня и Тоалет. Помещава се в новострояща се тухлена сграда, на 2-ри етаж от общо 6, със западно изложение. Отличната му локация, в непосредствена близост до метростанция 'Горна Баня', го прави чудесно жилище, както за живеене, така и за инвестиция със сигурен доход.

Отлична Локация: Имота се намира в един от най-предпочитаните за живеене и инвестиция райони на град София - кв. Овча Купел, на 300м. от метростанция на 'Горна Баня'. Лесен и бърз достъп до главни пътни артерии, административни учреждения, банки, училища, детски градини, автобусни спирки, детски площадки, аптеки, търговски центрове, супермаркети, козметични студия, заведения и туристически атракции.

Състояние : Имотът се издава съгласно БДС Екстериорна блиндирана врата. Под: нивелирана замазка подготвена за полагане на гранитогрес, паркет или настилка по Ваш избор. Стени: машинно обработена гипсова мазилка с турбозол подготвена за боя или тапет по ваш избор. Мокри Помещения: ръчно обработена циментова мазилка подготвена за полагане на фаянс и теракота. ВиК инсталация на тапа . ЕЛ инсталация : контакти, ключ и фасонки. Немска 6 камерна ПВЦ дограма 'REHAU' с троен стъклопакет. Сградата ще бъде газифицирана!

Строителство : Висококачествено Ново Строителство стоманобетонна конструкция посрещащи всички норми за сеизмичност съгласно БДС . Монолитна зидария изпълнена с най-висок клас Австрийски керамични блокове на фирмата Wienerberger Porotherm 25 N+F Light . . Топлоизолационна система BAUMIT ESP-60mm. Силикат-силиконова фасадна мазилка на фирмата BAUMIT с висока паропропускливост и самопочистващ се ефект.

Сградата : Луксозно завършени общи части на естествен гранит, парапети от метал, хидравличен асансьор с долно машинно гарантиращ безшумната работа на съоръжението. Домофона система за контролиран достъп в сградата.

Отлична Схема на плащане: 20% капаро ; 60% при снабдяване сградата с образец : АКТ 14 ; 10% при снабдяване на сградата с Образец Акт 15; 10% при снабдяване сградата с АКТ 16 (Разрешително за Въвеждане в Експлоатация).

Забележка : ПОСОЧЕНАТА ЦЕНА Е БЕЗ ВКЛЮЧЕН ДДС! Приложените по-горе описания, снимки, скици, архитектурни разпределения и визуализации са илюстративни, те имат за цел да Ви дадат максимално добра и идейна представа за общия вид и разпределението на имота ! Горепосочените са предоставени и одобрени от собственика, същите са публикувани с неговото съгласие ! Имотът се издава пригоден за живеене и е със статут на апартамент, което го прави идеален за инвестиция и отдаване под наем !

НОВ ДОМ 1 : Компанията разполага с : Юридически Отдел - извършващ всички необходими юридически и технически проверки на имота, организира всички етапи на сделката до нейното финализиране с нотариално прехвърляне на имота. Кредитен Отдел - съдействащ за отпускане на банков кредит при възможно най-добри условия за клиента, като избора на банка се определя спрямо нуждите и възможностите на клиента. Строително-Ремонтен Отдел - гарантиращ при нужда цялостен ремонт на вашето жилище до ключ при най-изгодни условия и цени.

Консултант Недвижими Имоти : Димитър Петров 0895 501 006
Преглеждания: 10
Другите търсят също
Препоръчани за теб
Цена:
113 000 €
13 560 € Цена
221 008,79 лв
26 521,05 лв
Цената е без ДДС