ОСТАВАТ
00часа
00мин.
00сек.
до големите отстъпки на
Ден за разпродажби

Продава 3-СТАЕН, гр. София, област София-град → Обява 53603220

Продава 3-СТАЕН, гр. София, област София-град, снимка 1 - Апартаменти - 53603220 Продава 3-СТАЕН, гр. София, област София-град, снимка 2 - Апартаменти - 53603220 1/2
Продава 3-СТАЕН, гр. София, област София-град
гр. София Наблюдавай

Публикувана/обновена днес в 11:35 ч.


Тип апартамент
3-стаен
Квадратура
89 кв. м.
Цена на кв.м.
2701 €/кв. м.
Вид строителство
Тухла
Eтаж
4
Година
2027
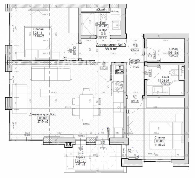
Апартамент 10 със склад 11. Тристаен апартамент на етаж четвърти, кота +9,00м. с РЗП- 121,39кв.м. и ЗП-88,50кв.м. Разпределение: антре, голяма дневна с кухненски бокс и трапезария-27,54кв.м. , спалня- 11,86кв.м., втора спалня-11,82кв.м., две бани с тоалетни, мокро и тераса -4,61кв.м. Налични ПМ и гаражи.

Нова шестетажна, жилищна сграда в кв. Левски с 16 апартамента 11 двустайни и 5 тристайни, с гаражи и паркоместа. Разработена е със сутерен, партер, три етажа и две мансардни нива. В подземното ниво са ситуирани гаражи и паркоместа. На партерното ниво има гаражи, жилище и открити паркоместа. Останалите етажи са решени с двустайни и тристайни апартаменти. Складове към всеки имот включени в цената. Предвидено отопление с климатици мултисплит система.
Комуникативна локация с бърз достъп до централните части на града, училища, детски градини, магазини и градски транспорт.
Качествена енергийно ефективна сграда с луксозни общи части. Изпълнява се с висок клас материали: Тухли Wienerberger, Топлоизолационна система BAUMIT, Шесткамерна PVC дограма с троен стъклопакет, Луксозни общи части. Паркоместа 25 000 ; Гаражи от 35 000
Район с изградена инфраструктура.
Обади се сега и цитирай този код 685490
Преглеждания: 3
Цена:
240 352 € 470 087,65 лв
Не се начислява ДДС