ОСТАВАТ
00часа
00мин.
00сек.
до големите отстъпки на
Ден за разпродажби

Продава 3-СТАЕН, гр. София, Люлин 8 → Обява 53605820

Продава 3-СТАЕН, гр. София, Люлин 8, снимка 1 - Апартаменти - 53605820 Продава 3-СТАЕН, гр. София, Люлин 8, снимка 2 - Апартаменти - 53605820 Продава 3-СТАЕН, гр. София, Люлин 8, снимка 3 - Апартаменти - 53605820 1/3
Продава 3-СТАЕН, гр. София, Люлин 8
гр. София, Люлин 8 Наблюдавай

Публикувана/обновена днес в 15:16 ч.


Тип апартамент
3-стаен
Квадратура
123 кв. м.
Цена на кв.м.
2056 €/кв. м.
Вид строителство
Тухла
Eтаж
8
ЦЕНИ НА ИНВЕСТИТОР!!!
ЕРА Фаворит продава тристаен апартамент в Люлин 8 в новострояща се сграда от доказан инвеститор.
Характеристики на жилището:
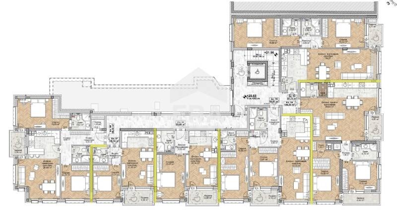
Етажност - осми жилищен етаж.
Разпределение - апартаментът разполага с дневна с трапезария и кухненски бокс, коридор две бани с тоалетна, две преходни спални, склад и покрита люджия с югоизточно изложение.
Дневната е разделена от спалните помещения чрез немски преход.
Изложение - югоизток
Застроена площ - 106м?
Обща площ - 123м?
Паркомясто - може да се закупи допълнително.
Характеристики на проекта:
Сградата се състои от един подземен етаж с гаражи, паркоместа, складови помещения и технически зони, осем жилищни етажи и един терасовиден последен етаж.
Начален етап на строителство. Въвеждане в експлоатация - края на 2028 година. В околността има изобилие от магазини, училища, аптеки, парк. Сградата се изгражда на стратегическа локация в непосредствена близост до водещи пътни артерии, включително метростанция, предоставяйки възможност за бърза връзка с различните части на града. Локацията прави този апартамент еднакво подходящ както за лично ползване, така и като инвестиционна възможност.
Жилищен капацитет:
В комплекса са предвидени общо 59 апартамента - двустайни, тристайни и ателиета, проектирани с внимание към функционалността и уюта на всеки един от тях.
Агенция ЕРА Фаворит е член на НСНИ и администратор на лични данни.
Преди огледа се провежда среща в нашия офис, за да се запознаем с изискванията Ви и за да оформим документи съгласно ЗЗД и ЗМИП.
По време на огледа се подписва Протокол за оглед.
Предлагаме Ви юридическо съдействие през целия процес на покупката.
Агенцията съдейства за безплатна кредитна консултация от CREDITERA - лицензиран финансов брокер към БНБ!
Всеки ERA офис е с независимо управление и собственост!

Оферта 7200427
Преглеждания: 5
Другите търсят също
Препоръчани за теб
Цена:
252 909 € 494 647,01 лв
Цената е с включен ДДС