ОСТАВАТ
00часа
00мин.
00сек.
до големите отстъпки на
Ден за разпродажби

Продава 2-СТАЕН, гр. София, Люлин 8 → Обява 53614529

Продава 2-СТАЕН, гр. София, Люлин 8, снимка 1 - Апартаменти - 53614529 Продава 2-СТАЕН, гр. София, Люлин 8, снимка 2 - Апартаменти - 53614529 Продава 2-СТАЕН, гр. София, Люлин 8, снимка 3 - Апартаменти - 53614529 Продава 2-СТАЕН, гр. София, Люлин 8, снимка 4 - Апартаменти - 53614529 1/4
Продава 2-СТАЕН, гр. София, Люлин 8
гр. София, Люлин 8 Наблюдавай

Публикувана/обновена вчера в 09:38 ч.


Тип апартамент
2-стаен
Квадратура
50 кв. м.
Цена на кв.м.
2404 €/кв. м.
Вид строителство
Тухла
Eтаж
1
Година
2028
БИЛДИНГ БОКС предлага за продажба двустаен апартамент в проект 'Чар', ж.к. 'Люлин 8' - нова модерна тухлена сграда, която ще бъде въведена в експлоатация през 2028 г.

Предимства на проекта:
1. Сграда с 59 апартамента: двустайни, тристайни и ателиета;
2. Изключително сигурен и доказан строител с безупречна репутация и многобройни реализирани обекти (офиси, магазини, апартаменти и гаражи);
3. Липса на индексация в договорите;
4. Изпълнение с висококачествена минерална мазилка;
5. Френски прозорци с трислоен стъклопакет;
6. Асансьори 'KONE' за 8 10 човека;
7. Ново тухлено строителство с очакван акт 16: края на 2028 г.;
8. Функционално и комфортно разпределение;
9. Подходящо за лично ползване и инвестиция.

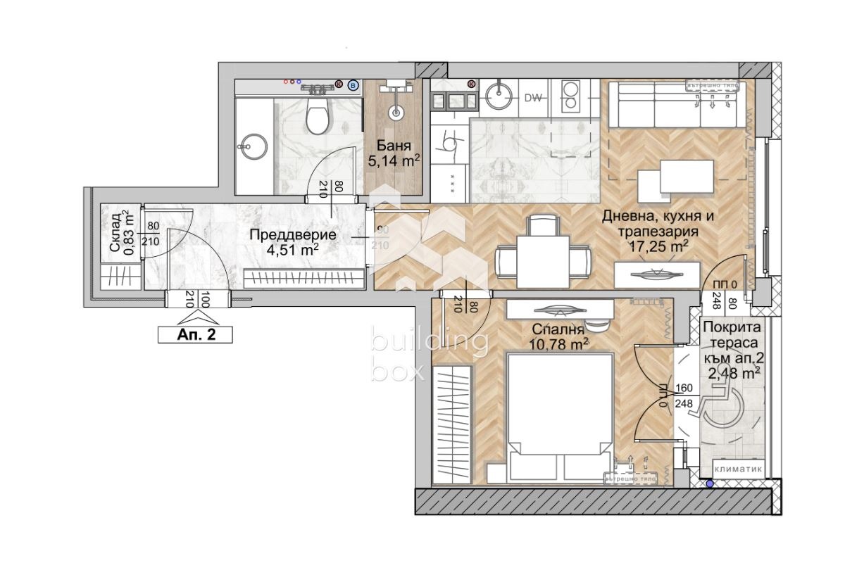
Имот:
Апартаментът е със застроена площ от 50.09 кв.м и е с изложение изток.
Разположен на партерен етаж от общо 9 Отопление: ТЕЦ.

Разпределение:
- Хол с кухненски бокс;
- Спалня;
- Баня с тоалетна;
- Входно антре;
- Тераса;
- Склад

Има опция и за закупуване на паркомясто или гараж с цени от 18 500 евро.

БИЛДИНГ БОКС предоставя безплатна консултация и съдеиствие при финансиране на избрания от Вас имот.
Оферта 28383
Преглеждания: 6
Другите търсят също
Препоръчани за теб
Цена:
120 212 € 235 114,24 лв
Цената е с включен ДДС