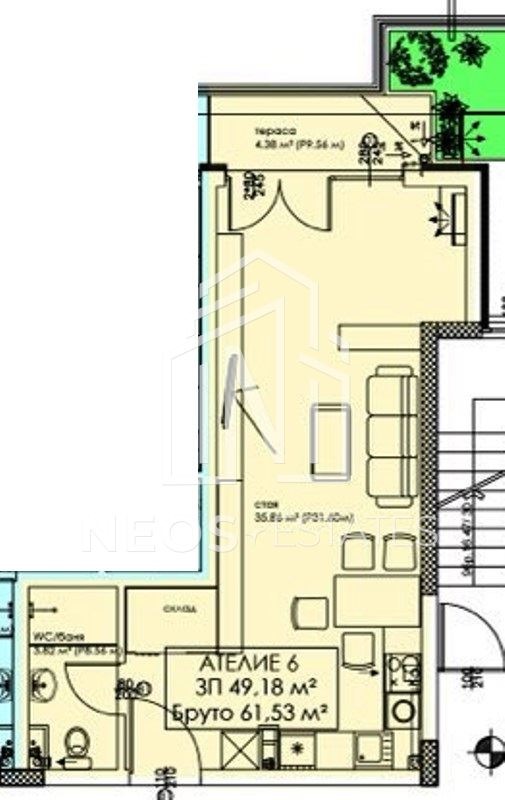
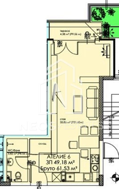
НЕОС ЕСТЕЙТС
В Bazar.BG от 02 март 2018г.
Последно активен
днес в 13:46 ч.
Още оферти на https://neos-estates.imot.bg
