ОСТАВАТ
00часа
00мин.
00сек.
до големите отстъпки на
Ден за разпродажби

Продава 3-СТАЕН, гр. Варна, Възраждане 2 → Обява 53636458

Продава 3-СТАЕН, гр. Варна, Възраждане 2, снимка 1 - Апартаменти - 53636458 Продава 3-СТАЕН, гр. Варна, Възраждане 2, снимка 2 - Апартаменти - 53636458 Продава 3-СТАЕН, гр. Варна, Възраждане 2, снимка 3 - Апартаменти - 53636458 Продава 3-СТАЕН, гр. Варна, Възраждане 2, снимка 4 - Апартаменти - 53636458 Продава 3-СТАЕН, гр. Варна, Възраждане 2, снимка 5 - Апартаменти - 53636458 1/5
Продава 3-СТАЕН, гр. Варна, Възраждане 2
гр. Варна, Възраждане 2 Наблюдавай

Публикувана/обновена днес в 18:00 ч.


Тип апартамент
3-стаен
Квадратура
124 кв. м.
Цена на кв.м.
1516 €/кв. м.
Вид строителство
Тухла
Eтаж
12
Година
2028
Агенция SUPRIMMO: www.suprimmo.bg
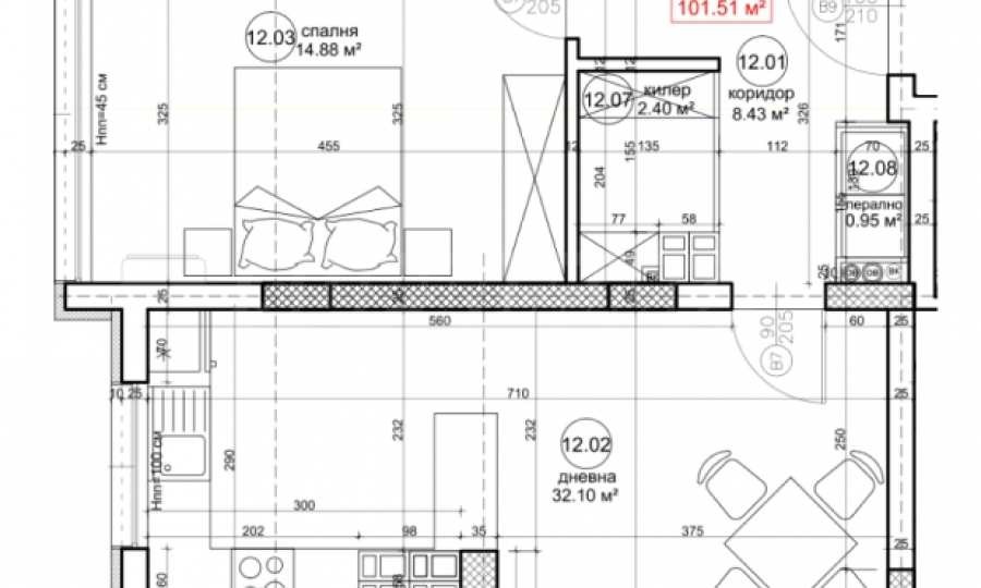
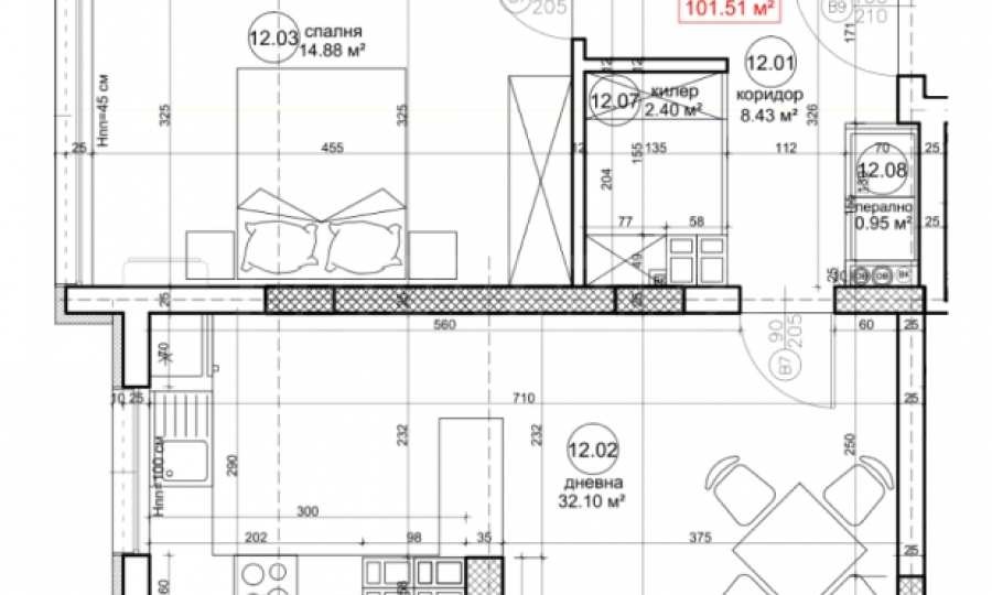
Представяме тристаен апартамент в нов комплекс, в кв. 'Възраждане 2'. Удобна локация с излаз на главен булевард и в близост до парк, големи супермаркети, ресторант, училище, спортни съоражения и др.

В процес на строителство, Акт 16 се очаква в края на 2028 г.

Комплексът предлага двустайни, тристайни, четиристайни жилища, както и паркоместа на открит паркинг.

Жилището с обща площ от 124,24 кв.м е разположено на 12-и етаж от 13.

Разпределение:
входно антре;
дневна с кухненски кът и трапезария;
две спални;
баня с тоалетна;
тоалетна;
два килера;
перално помещение;
тераса.

Имотите се предават в степен на завършеност по БДС, на шпакловка и замазка.

Схеми на плащане - Вариант 1:
30% при подписване на предварителен договор;
30% кота 0;
20% при готова покривна плоча на втори етаж;
10% при подписан Акт 14;
10% при подписан Акт 15.

Схеми на плащане - Вариант 2:
40% при подписване на предварителен договор;
50% с/без кредит след подписан Акт 14;
10% при подписан Акт 15.

Схеми на плащане - Вариант 3:
30% при подписване на предварителен договор;
60% с/без кредит след подписан Акт 14;
10% при подписан Акт 15.

Схеми на плащане - Вариант 4:
20% при подписване на предварителен договор;
70% с/без кредит след подписан Акт 14;
10% при подписан Акт 15.

Очакваме Вашето запитване

Ако желаете да организирате оглед на имот, който Ви интересува, или да посетите някой от нашите офиси, моля свържете се с нас. За да уговорите ден и час за среща или оглед, можете да се обадите на посочения в обявата телефон или да изпратите запитване чрез електронната поща. Нашият консултант ще Ви съдейства с всички необходими подробности и ще уговори удобно за Вас време.

Търсите подходящия за Вас имот?

Не се колебайте да се свържете с нас и да ни разкажете за Вашите нужди и предпочитания. Нашият екип ще проведе задълбочено проучване на пазара, за ...

За повече информация свържете се с нас и цитирайте референтния номер на имота. Моля, кажете, че сте видeли обявата в този сайт.
Референтен номер: VAR-138353
Тел: 0889 016 232, 052 810 383
Отговорен брокер:Драган Колев
Без комисиона от купувача
Преглеждания: 3
Другите търсят също
Препоръчани за теб
Цена:
188 000 € 367 696,04 лв
Цената е с включен ДДС