Продава 2-СТАЕН, гр. София, Банишора → Обява 53677165

Продава 2-СТАЕН, гр. София, Банишора, снимка 1 - Апартаменти - 53677165 Продава 2-СТАЕН, гр. София, Банишора, снимка 2 - Апартаменти - 53677165 Продава 2-СТАЕН, гр. София, Банишора, снимка 3 - Апартаменти - 53677165 Продава 2-СТАЕН, гр. София, Банишора, снимка 4 - Апартаменти - 53677165 1/4
Продава 2-СТАЕН, гр. София, Банишора
гр. София, Банишора Наблюдавай

Публикувана/обновена днес в 11:45 ч.


Тип апартамент
2-стаен
Квадратура
62 кв. м.
Цена на кв.м.
2823 €/кв. м.
Вид строителство
Тухла
Eтаж
4
Година
2027
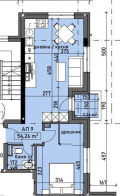
2-СТАЕН АПАРТАМЕНТ | 61.60 кв.м | кв. Банишора | Изток | 4-ти етаж

Предлагаме за продажба функционален двустаен апартамент с отлично вътрешно разпределение, разположен на 4-ти етаж в кв. Банишора район с бърз достъп до центъра, метростанция, градски транспорт, магазини и всички необходими удобства за комфортен градски живот.

Имотът е с площ от 61.60 кв.м и се състои от:
✔ входно антре с място за гардероб
✔ просторна дневна с кухненски бокс и трапезария с правилна форма
✔ самостоятелна спалня с дрешник
✔ баня с тоалетна
✔ тераса с излаз от дневната

Апартаментът е с източно изложение, което осигурява много естествена светлина и ниски разходи за отопление.

Разпределението е изключително практично без преходни помещения, с ясни зони за почивка и дневен тракт.

Подходящ както за:
🔹 лично ползване
🔹 инвестиция с цел отдаване под наем

📍 Локация: кв. Банишора пешеходно разстояние до метро, централна градска част, училища, детски градини и търговски обекти.

📞 За повече информация и оглед свържете се с нас.
Преглеждания: 2
Другите търсят също
Препоръчани за теб
Цена:
175 000 € 342 270,25 лв
Не се начислява ДДС