ОСТАВАТ
00часа
00мин.
00сек.
до големите отстъпки на
Ден за разпродажби

Продава 3-СТАЕН, гр. София, Зона Б-19 → Обява 53683092

Продава 3-СТАЕН, гр. София, Зона Б-19, снимка 1 - Апартаменти - 53683092 Продава 3-СТАЕН, гр. София, Зона Б-19, снимка 2 - Апартаменти - 53683092 1/2
Продава 3-СТАЕН, гр. София, Зона Б-19
гр. София, Зона Б-19 Наблюдавай

Публикувана/обновена на 02 март в 17:04 ч.


Тип апартамент
3-стаен
Квадратура
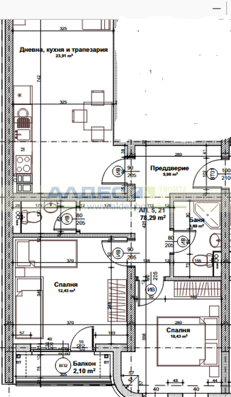
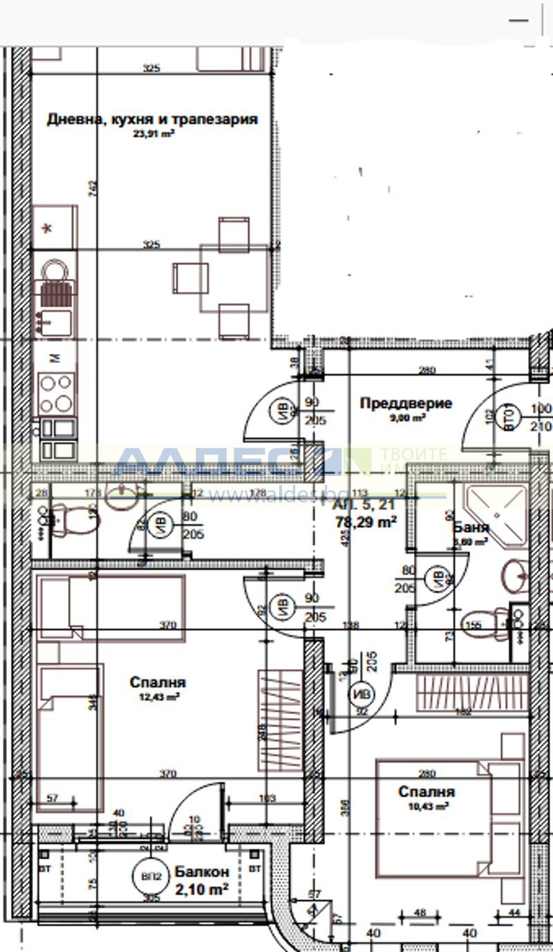
102 кв. м.
Цена на кв.м.
2019 €/кв. м.
Вид строителство
Тухла
Eтаж
3
Година
2027
КРАСИВА, СЪВРЕМЕННА, ЕЛЕГАНТНА, НОВА тухлена сграда на удобна и супер комуникативна локация. С Акт 14 към момента, очакван Акт 16 - пролетта на 2027 г. Удобни, съобразени схеми на плащане!
Все още и налични гаражи, паркоместа, складове на отделни цени. Сградата ще бъде реализирана от утвърден, доказан през годините строител по най-съвременни технологии-дограми, фасадни облицовки, топлоизолации за отлична енергоефективност. Локацията е отлична, защото е в близост до множество линии на градския транспорт, метростанция, учебни и детски заведения, супермаркети, търговски обекти, паркове, медицински заведения /Първа АГ болница 'Св.София', медицински центрове/.

НОВ, ФУНКЦИОНАЛЕН, ТУХЛЕН тристаен апартамент, на етаж първи над гаражи от шестетажна монолитна, тухлена сграда с подземен и приземен етажи. Застроена площ: 78.29 кв.м. Площ с общи части: 101.86 кв.м.

РАЗПРЕДЕЛЕНИЕ: предверие, дневна, кухня и трапезария, две спални, като към едната има балкон, две бани с тоалетни.

ПОДОВИ НАСТИЛКИ: обектите се предават на замазка и шпакловка; по желание на клиента: могат да бъдат завършени 'до ключ', срещу допълнително заплащане.

ЗА ПОВЕЧЕ ПОДРОБНОСТИ И ОГЛЕДИ: 0892242802. Оферта 11987 (Ап.21)
Преглеждания: 42
Другите търсят също
Препоръчани за теб
Цена:
205 957 € 402 816,88 лв
Цената е с включен ДДС