Продава 1-СТАЕН, гр. София, Слатина → Обява 53733428

Продава 1-СТАЕН, гр. София, Слатина, снимка 1 - Апартаменти - 53733428 Продава 1-СТАЕН, гр. София, Слатина, снимка 2 - Апартаменти - 53733428 Продава 1-СТАЕН, гр. София, Слатина, снимка 3 - Апартаменти - 53733428 Продава 1-СТАЕН, гр. София, Слатина, снимка 4 - Апартаменти - 53733428 Продава 1-СТАЕН, гр. София, Слатина, снимка 5 - Апартаменти - 53733428 1/5
Продава 1-СТАЕН, гр. София, Слатина
гр. София, Слатина Наблюдавай

Публикувана/обновена на 06 март в 12:43 ч.


Тип апартамент
1-стаен
Квадратура
49 кв. м.
Цена на кв.м.
2357 €/кв. м.
Вид строителство
Тухла
Eтаж
1
Година
2028
БИЛДИНГ БОКС представя сграда, която се отличава с просторни жилища с перфектно разпределение и високо качество на строителството, изпълнено от опитни професионалисти, които осигуряват сигурност и комфорт за бъдещите обитатели.

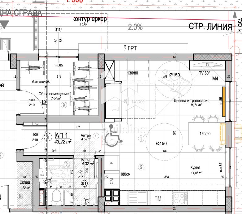
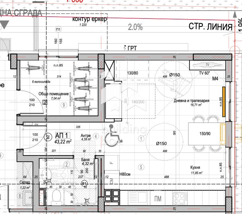
Имотът е едностаен и е със застроена площ от 43.22 кв.м. Има следното разпределение: входно антре, дневна с трапезария и баня с тоалетна.
Изложението на имота е изток.
Намира се на партерен етаж от общо 6. Отоплението е на ТЕЦ - ще има изводи за климатици с мултисплит, както и предвидено място за бойлер.

Жилищният комплекс е изпъкващ сред сградите в района с иновативен дизайн, модерна фасада и перфектни архитектурни решения. Ще предостави комфорт за бъдещите си собственици и всички необходими удобства за днешния градски живот. При изграждането на проекта ще бъдат използвани висококачествени материали и технологии.

Сградата е на втора плоча и ще бъде завършена м. Октомври 2028 г.

Местоположението на сградата е изключително удобно в непосредствена близост до спирки на градски транспорт, магазини и супермаркети, училища и детски градини. Районът е добре устроен с множество зелени междублокови пространства и поддържана среда за живеене. Локацията осигурява бърз достъп до основни булеварди като Шипченски проход и Цариградско шосе , което позволява лесно и удобно придвижване до всички части на града.

БИЛДИНГ БОКС предоставя безплатна консултация и съдействие при финансиране на избрания от Вас имот.
Оферта 27306
Преглеждания: 68
Другите търсят също
Препоръчани за теб
Цена:
115 500 € 225 898,37 лв
Цената е с включен ДДС