Продава 2-СТАЕН, гр. Варна, Младост 2 → Обява 53883524

Продава 2-СТАЕН, гр. Варна, Младост 2, снимка 1 - Апартаменти - 53883524 Продава 2-СТАЕН, гр. Варна, Младост 2, снимка 2 - Апартаменти - 53883524 Продава 2-СТАЕН, гр. Варна, Младост 2, снимка 3 - Апартаменти - 53883524 1/3
Продава 2-СТАЕН, гр. Варна, Младост 2
гр. Варна, Младост 2 Наблюдавай

Публикувана/обновена на 27 април в 09:12 ч.


Тип апартамент
2-стаен
Квадратура
75 кв. м.
Цена на кв.м.
1547 €/кв. м.
Вид строителство
Тухла
Eтаж
9
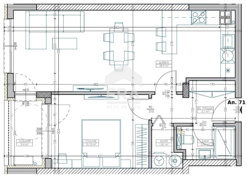
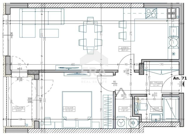
ЕРА Лайф обявява за продажба тристаен апартамент с площ 75,21 м2 (застроена площ 64,01) м2, разположен на 9 етаж от 11 в новострояща се жилищна сграда. Имотът е със следното разпределение: дневна с кухненски бокс, спалнуя, баня с тоалетна, килер, входно преддверие и лоджия. Виж раздел 'План'.

Изложение: югозапад. Вид на завършеност на жилището: БДС стандарт, стени - мазилки, шпакловка и грунд, тавани - мазилка, шпакловка и грунд, входна врата с метален обков, пет камерна PVC дограма, марка 'ВИВАПЛАСТ', ел. инсталации - контакти и фасунги, ВиК на тапи.

Вид на завършеност на жилището: БДС стандарт, стени - мазилки, шпакловка и грунд, тавани - мазилка, шпакловка и грунд, входна врата с метален обков, пет камерна PVC дограма, марка 'ВИВАПЛАСТ', ел. инсталации - контакти и фасунги, ВиК на тапи.

Отопленето ще бъде с електричество. Схемата на плащане е: При предварителен договор: 30%,при достигане на кота 15.35 : 20%, при издаване на Акт 14: 20%, при поставяне на дограма: 10%, при издаване на Акт 15: 10%, при издаване на Акт 16: 10%.
Паркирането е свободно в района, като има възможност за закупуване на подземен гараж или открито паркомясто.

Обявеният за продажба апартамент е в сграда, която ще бъде въведена в експлоатация декември 2027г. В строителството на сградата са заложени качествени материали.

Район с отлична инфраструктура - в близост до главни пътни артерии, автобусни спирки на градския транспорт, магазини, голям търговски център, професионални гимназии и училища, детски градини и ясли. Имотът е отличен както за живеене, така и за инвестиция. Код: 0708761

Оферта 0708761
Преглеждания: 74
Другите търсят също
Препоръчани за теб
Цена:
116 000 € 226 876,28 лв
Цената е с включен ДДС