ОСТАВАТ
00часа
00мин.
00сек.
до големите отстъпки на
Ден за разпродажби

Продава ПАРЦЕЛ, гр. Варна, м-т Зеленика → Обява 53961116

Продава ПАРЦЕЛ, гр. Варна, м-т Зеленика, снимка 1 - Парцели - 53961116 Продава ПАРЦЕЛ, гр. Варна, м-т Зеленика, снимка 2 - Парцели - 53961116 Продава ПАРЦЕЛ, гр. Варна, м-т Зеленика, снимка 3 - Парцели - 53961116 Продава ПАРЦЕЛ, гр. Варна, м-т Зеленика, снимка 4 - Парцели - 53961116 1/4
Продава ПАРЦЕЛ, гр. Варна, м-т Зеленика
гр. Варна, м-т Зеленика Наблюдавай

Публикувана/обновена днес в 15:09 ч.


Квадратура
991 кв. м.
Цена на кв.м.
182 € кв. м.
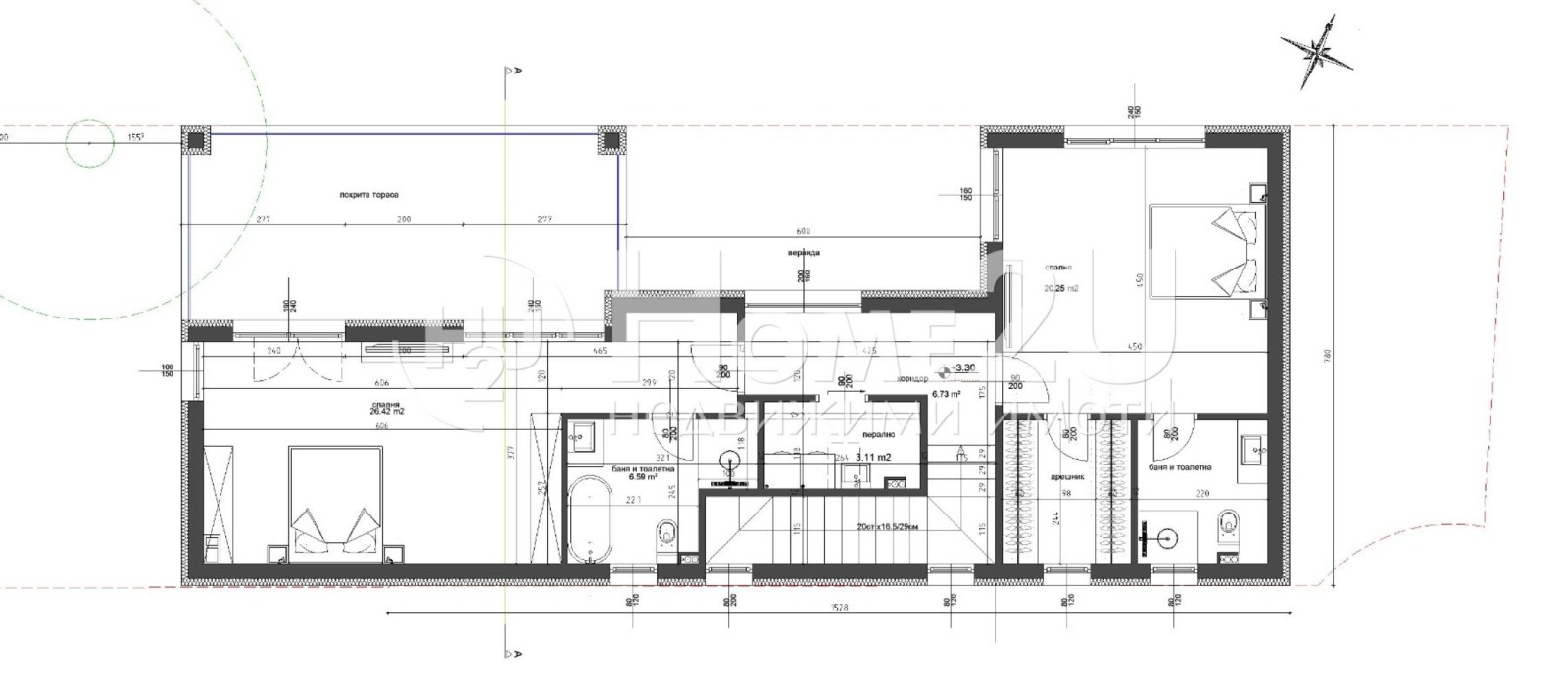
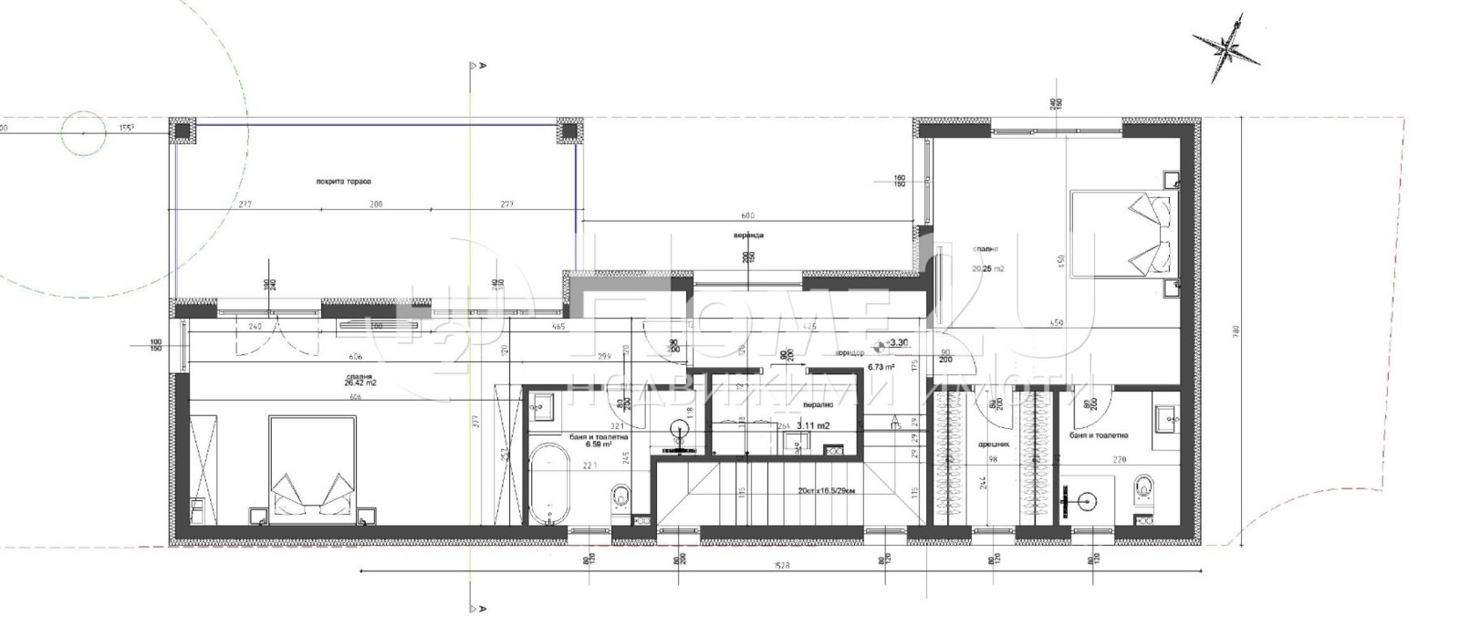
Панорамен парцел с одобрен проект за къща 991 кв.м с морска гледка към Варненския залив

Площ на парцела: 991 кв.м
Проектирана РЗП: 252 кв.м

Предлагаме ви изключително перспективен имот с одобрен проект за двуетажна къща, разположен в район с растящ интерес, постоянна морска панорама и бърза възвръщаемост при инвестиция.

? Проектна къща 252 кв.м РЗП / 2 етажа

? Първи етаж:
Просторен дневен тракт с кухненски бокс 44 кв.м
Килер към дневната 6 кв.м
Коридор с достъп до стълбище 17 кв.м
Спалня 18 кв.м
Две бани с тоалетна
Открита веранда 26 кв.м, с възможност за обособена зона за отдих или лятна кухня

? Втори етаж:
Възможност за 4 отделни спални или 3 просторни спални
По проект:
Спалня 1 28 кв.м
Спалня 2 20 кв.м
Допълнителни стаи по избор
2 санитарни възела (бани с тоалетни)
Перално помещение
Трети санитарен възел самостоятелен

? Характеристики на парцела:
Площ: 991 кв.м
Възможна РЗП: до 600 кв.м
Подходящ за: до три еднофамилни къщи
Одобрен ПУП и виза за проектиране
Ток с разрешение от Енерго Про
Вода е налична от две места в парцела
Равен терен с правилна форма
Лесен достъп от два пътя
Постоянна, нескриваема морска гледка

? Имотът предлага отлична възможност за лично строителство или доходоносна инвестиция, като добавената стойност от готов проект и перфектна локация гарантират интерес както от частни купувачи, така и от предприемачи.

? За повече информация:
Оферта 126144
Преглеждания: 4
Другите търсят също
Препоръчани за теб
Цена:
179 990 € 352 029,84 лв
Не се начислява ДДС