ОСТАВАТ
00часа
00мин.
00сек.
до големите отстъпки на
Ден за разпродажби

Продава 3-СТАЕН, гр. Варна, Цветен квартал → Обява 53979457

Продава 3-СТАЕН, гр. Варна, Цветен квартал, снимка 1 - Апартаменти - 53979457 Продава 3-СТАЕН, гр. Варна, Цветен квартал, снимка 2 - Апартаменти - 53979457 Продава 3-СТАЕН, гр. Варна, Цветен квартал, снимка 3 - Апартаменти - 53979457 Продава 3-СТАЕН, гр. Варна, Цветен квартал, снимка 4 - Апартаменти - 53979457 1/4
Продава 3-СТАЕН, гр. Варна, Цветен квартал
гр. Варна, Цветен квартал Наблюдавай

Публикувана/обновена днес в 01:21 ч.


Тип апартамент
3-стаен
Квадратура
100 кв. м.
Цена на кв.м.
1900 €/кв. м.
Вид строителство
Тухла
Eтаж
2
Година
2027
✔️ИЗБОР НА ТРИСТАЙНИ АПАРТАМЕНТИ в Цветен квартал! ✔️БУТИКОВА СГРАДА! ✔️РАЗСРОЧЕНО ПЛАЩАНЕ! ✔️ФИКСИРАНА ЦЕНА! ✔️ДОКАЗАН СТРОИТЕЛ!

КОД: 16822. Стефанов инвест има удоволствието да Ви представи новострояща се жилищна сграда, с модерна архитектура, разположена в Цветния квартал, в близост до Стадион Спартак.

Имате възможността да избирате от следните апартаменти:

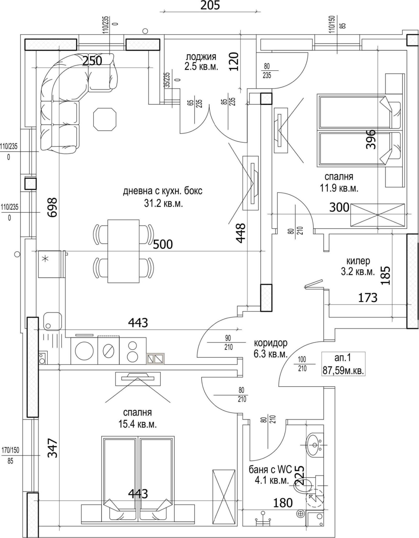
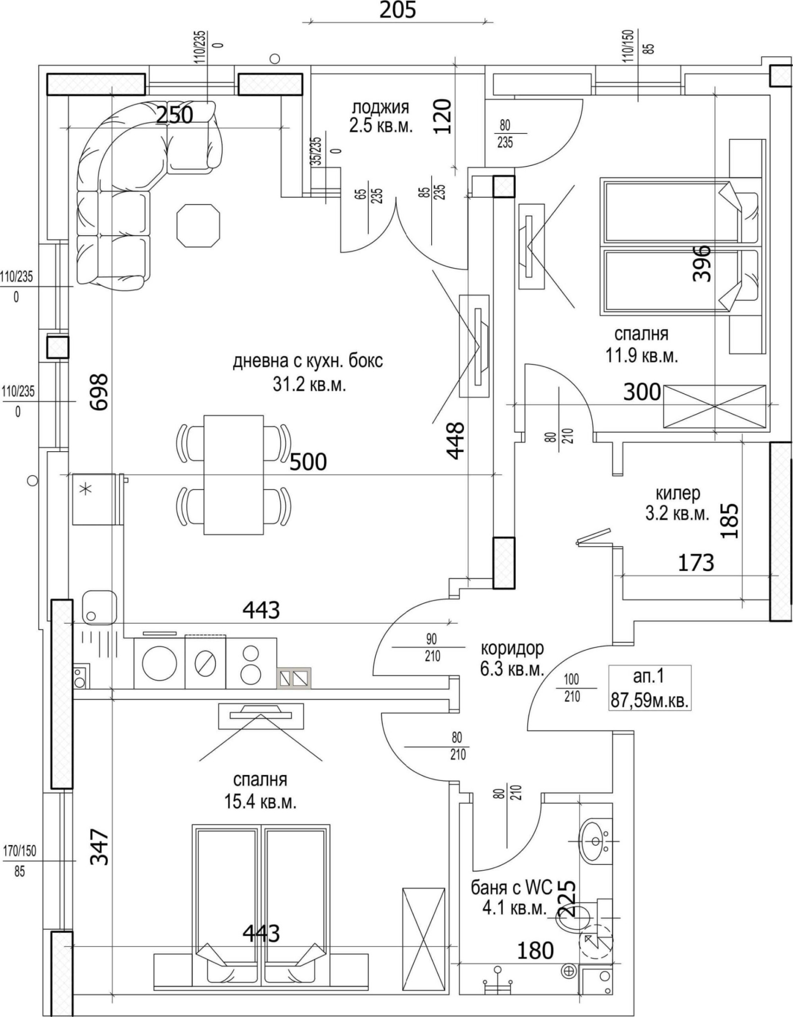
-Тристаен апартамент/1/, етаж 2, с площ от 100 кв.м., функционално разпределени във: входно антре, дневна с кухненска част-31,2 кв.м, две спални /11,9 и 15,4кв.м./,баня с тоалет, килер и тераса.. Изложение: юг, североизток. Цена 190 000 Евро!

-Тристаен апартамент/2/, етаж 2, с площ от 99 кв.м., функционално разпределени в: коридор, дневна с кухненска част-26,3 кв.м, две спални /13,3 и 13,6кв.м./,баня с тоалет, килер, перално и тераса.. Цена 185 000 Евро!

-Тристаен апартамент/7/, етаж 3, с площ от 103,56 кв.м., функционално разпределени в: коридор, дневна с кухненска част-26,3 кв.м, две спални /13,3 и 13,6кв.м./,баня с тоалет, килер, перално и тераса.. Изложение: юг, северозапад. Цена 198 000 Евро!

-Тристаен апартамент/21/, етаж 6/7, с площ от 96,82 кв.м., функционално разпределени във: входно антре, дневна с кухненска част-26 кв.м, две спални /15,4 и 13,6кв.м./,баня с тоалет, килер и тераса.. Изложение: юг, североизток. Цена 189 000 Евро!

Степен на завършеност- БДС, с гипсова мазилка и циментова замазка; Външна врата блиндирана. Срок зазавършване март 2027г

Строителят е утвърдена фирма на пазара с дългогодишен опит и изключително качествено изпълнение на строителството. Предлагат се фиксирана цена на имотите, без промяна до края на строителството.

Сградата се намира в квартал с добре развита инфраструктура. В близост има училища, детски градини, магазини. Бързият достъп до транспортни връзки осигурява удобна връзка с централните части на града.

💼'Stefanov Invest'-агенция за недвижими имоти с дългогодишен опит и член на НСНИ.
Нашите експерти ще Ви съдействат с огледи, консултация и изгодно кредитиране от водещи банки.
📍Офиси в централната и туристическа част на градовете:
🏢 Варна-ул.'Иван Вазов' 10 - 0884373727
🏢 Обзор-ул.'Кирил и Методий' 22-0887239490
Преглеждания: 105
Другите търсят също
Препоръчани за теб
Цена:
190 000 € 371 607,70 лв
Цената е с включен ДДС