Продава 3-СТАЕН, гр. София, Център → Обява 54065985

Продава 3-СТАЕН, гр. София, Център
гр. София, Център Наблюдавай

Публикувана/обновена на 02 април в 14:26 ч.


Тип апартамент
3-стаен
Квадратура
184 кв. м.
Цена на кв.м.
2300 €/кв. м.
Вид строителство
Тухла
Eтаж
3
Година
2027
ОТЛИЧНА ЛОКАЦИЯ !!! СТАРТИРАЛО СТРОИТЕЛСТВО !!! ЛУКСОЗНА СГРАДА !!!
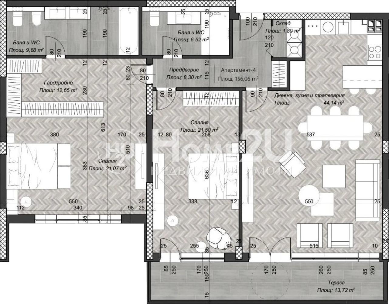
Представяме на Вашето внимание тристаен апартамент в нова жилищна сграда без аналог на пазара в центъра на столицата. Апартаментът ще разполага със следното функционално разпределение:
входно антре, хол + кухненски бокс 44,14кв.м., две спални (едната тип енсюит + гардеробно), още една баня с тоалетна, склад, тераса 13,72кв.м.
Фасадата на сградата е съвременна и модерна с елегантни декоративни елементи, които подчертават обемите. Конструкцията е монолитна стоманобетонна с външни зидове от 25 см. тухли и 10 см. топлоизолация. Терасите са предвидени с ажурни и плътни парапети с височина от мин. 120 см. от готов под. А създаването на общо пространство в градската среда е предизвикателство за осигуряването му по функционален път, което допълва уютната обстановка и качеството на живот. Предвидена е богато озеленена, общодостъпна покривна тераса.
Обадете се и цитирайте кода: 237743
Преглеждания: 86
Другите търсят също
Препоръчани за теб
Цена:
423 223 € 827 752,24 лв
Не се начислява ДДС