Продава МНОГОСТАЕН, гр. София, Обеля 2 → Обява 54074680

Продава МНОГОСТАЕН, гр. София, Обеля 2, снимка 1 - Апартаменти - 54074680 Продава МНОГОСТАЕН, гр. София, Обеля 2, снимка 2 - Апартаменти - 54074680 Продава МНОГОСТАЕН, гр. София, Обеля 2, снимка 3 - Апартаменти - 54074680 Продава МНОГОСТАЕН, гр. София, Обеля 2, снимка 4 - Апартаменти - 54074680 1/4
Продава МНОГОСТАЕН, гр. София, Обеля 2
гр. София, Обеля 2 Наблюдавай

Публикувана/обновена вчера в 10:05 ч.


Тип апартамент
Mногостаен
Квадратура
117 кв. м.
Цена на кв.м.
1613 €/кв. м.
Вид строителство
Тухла
Eтаж
5
Година
2027
Без комисион от купувача. Гъвкави схеми на плащане. Цените са без ДДС.

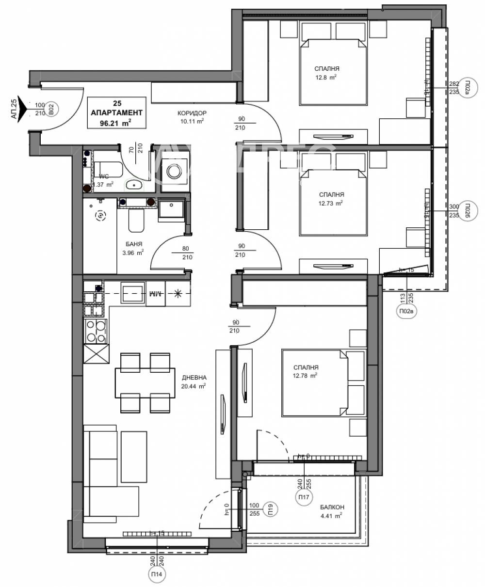
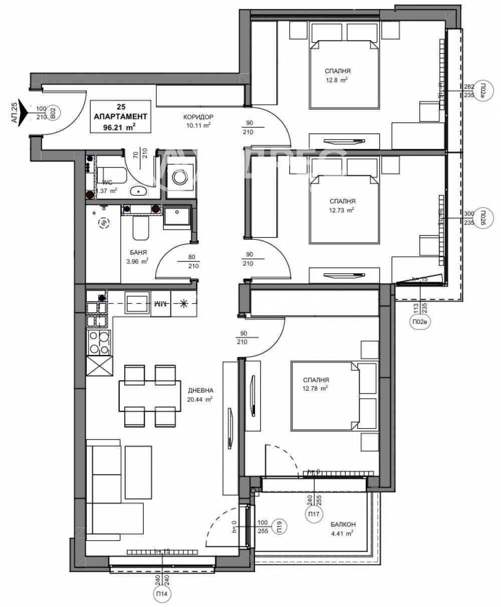
Многостаен апартамент с РЗП-116,15м?, ЗП-96,21м? с включен склад 25-2,37м?. Разпределение: коридор, дневна с кухненски бокс и трапезария, три спални, баня с тоалетна, отделна тоалетна, балкон. Отопление ТЕЦ. Изложение изток/юг.

Съвременен жилищен комплекс от затворен тип с контролиран достъп, създаден да осигури спокойствие, сигурност и качествен начин на живот. Проектът се отличава с модерна визия, висок клас строителство и добре планирана среда, съчетаваща функционалност и удобство за ежедневието. Отоплението е предвидено на ТЕЦ. Жилищата ще бъдат с висок клас дограма с троен стъклопакет. Общите части са луксозно завършени с гранит, висок клас асансьор.

Сградата е на 8 етажа с РЗП-5 279 кв.м. върху които са разположени: 47 апартамента, паркоместа и гаражи.

Етапи на строителство:


АКТ 14 декември - 2026 г.


АКТ 15 ноември - 2027 г.


АКТ 16 декември- 2027 г.


Схеми на плащане:

30% на ПД; 30% на АКТ-14; 30% на АКТ-15; 10% на АКТ-16

20 %на ПД; 80% след АКТ16

Всички обекти в сградата се предлагат БЕЗ КОМИСИОН ОТ КУПУВАЧА на цени на ИНВЕСТИТОРА.
Отлична локация за района, удобен транспорт: Метростанция Обеля на 5 минути. Трамвай 6, Автобуси 30,31,41,26 по бул. Ломско шосе .


Модерна жилищна сграда с окачена фасада и изпълнена с висококачествени материали, гарантиращи естетика, енергийна ефективност и дълготрайност.
Обеля-2 е бързоразвиващ се квартал с добре изградена инфраструктура. В близост до сградата има:

Детски градини: ДГ 82 Джани Родари ; ДГ 5 .

Училища: ЧОУ Дружба ; ЧПГ Дружба ; 140СУ Иван Богоров .

Медицински услуги: 30-ти ДКЦ, 16-та Стоматологична поликлиника, аптеки.

Магазини и услуги: Супермаркет Т Маркет , Хипермаркет БИЛА , банки, заведения, бензиностанции и др.

Спорт и почивка: Спортен център Кристал .
Обади се сега и цитирай този код 690205
Преглеждания: 5
Цена:
188 743 € 369 149,22 лв
Не се начислява ДДС