Продава 2-СТАЕН, гр. Варна, Цветен квартал → Обява 54116848

Продава 2-СТАЕН, гр. Варна, Цветен квартал, снимка 1 - Апартаменти - 54116848 Продава 2-СТАЕН, гр. Варна, Цветен квартал, снимка 2 - Апартаменти - 54116848 Продава 2-СТАЕН, гр. Варна, Цветен квартал, снимка 3 - Апартаменти - 54116848 1/3
Продава 2-СТАЕН, гр. Варна, Цветен квартал
гр. Варна, Цветен квартал Наблюдавай

Публикувана/обновена днес в 10:28 ч.


Тип апартамент
2-стаен
Квадратура
60 кв. м.
Цена на кв.м.
1832 €/кв. м.
Вид строителство
Тухла
Eтаж
2
Година
2026
ЦВЕТЕН КВАРТАЛ ДВУСТАЕН АПАРТАМЕНТ с ПАРКОМЯСТО ул.Невен НОВА СГРАДА
Никола Петров - 0894 466 979
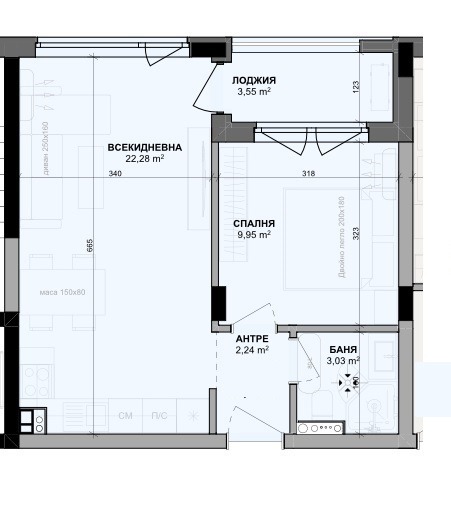
Имотът представлява : Входно антре, дневна с кухня и трапезария с излаз на тераса, спалня с излаз на същата тераса, баня с тоалетна.
Изложение - югозиток.
Апартаментът е разположен на втори етаж малка четириетажна бутикова сграда с асансьор.
Към апартамента има възможност да се закупи паркомясто на преференциална цена от 10 000 .
Напреднало строителство - пред акт15!
Състояние : Жилището се издава съгласно БДС с опция завършване До ключ, изготвяне на проект за интериорен дизайн на преференциални цени от БРАВИС ДИЗАЙН. ОТЛИЧНА ЛОКАЦИЯ намираща се в ЦВЕТЕН КВАРТАЛ Местоположението е изключително удобно, с бърз достъп до главни булеварди, хипермаркети, училища, детски градини. * Като клиенти на Бравис Брокърс получавате най-добрите условия при нужда от ипотечен кредит.
Преглеждания: 9
Другите търсят също
Обяви на потребителя БРАВИС БРОКЪРС ООД Виж всички 133 обяви
Препоръчани за теб
Цена:
109 900 €
99 900 € Цена
214 945,72 лв
195 387,42 лв
Не се начислява ДДС