ОСТАВАТ
00часа
00мин.
00сек.
до големите отстъпки на
Ден за разпродажби

Продава 3-СТАЕН, гр. Пловдив, Остромила → Обява 54265721

Продава 3-СТАЕН, гр. Пловдив, Остромила, снимка 1 - Апартаменти - 54265721 Продава 3-СТАЕН, гр. Пловдив, Остромила, снимка 2 - Апартаменти - 54265721 1/2
Продава 3-СТАЕН, гр. Пловдив, Остромила
гр. Пловдив, Остромила Наблюдавай

Публикувана/обновена днес в 14:01 ч.


Тип апартамент
3-стаен
Квадратура
134 кв. м.
Цена на кв.м.
1082 €/кв. м.
Вид строителство
Тухла
Eтаж
1
Година
2028
📢ЦЕНИ ДИРЕКТНО ОТ ИНВЕСТИТОР - БЕЗ КОМИСИОН !📢
РАЗСРОЧЕНИ СХЕМИ НА ПЛАЩАНЕ! ✅ ВЪЗМОЖНОСТ ЗА БАНКОВ КРЕДИТ!
ОФЕРТА : 16663

➤ Агенция за недвижими имоти ГОЛД ИМОТИ представя възможност за покупка на жилище в нов модерен комплекс, който обединява високо качество на строителство, отлична локация и разумна цена.

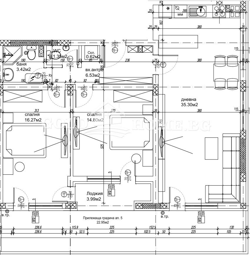
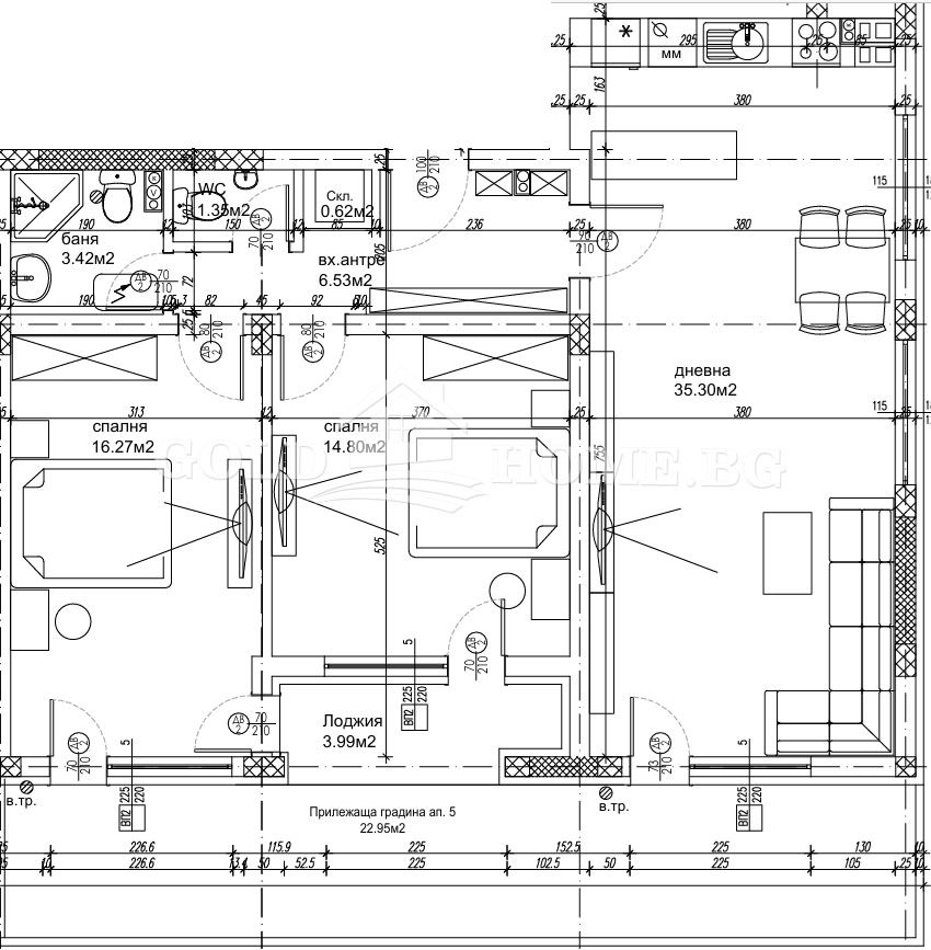
➡️Разпределение:
Входно антре , дневна с трапезария и кухненски бокс /35кв.м./ , две спални /15кв.м. и 16кв.м., баня с тоалетна , отделна тоалетна, склад ,в който ще бъдат изведени изводи за обособяване на перален кът и веранда с излаз от трите стаи.

☀️ Изложение и Етаж :
-Жилището е с изложение: Изток и е позиционирано на партерния етаж на сградата .

✨Характеристики и предимства :
-Бутиков комплекс с ниско застрояване - само две сгради с ограничен брой апартаменти повече личност, стил и уединение.
-Всеки апартамент разполага с балкон, тераса или собствена градина .
-Във всяко жилище има проектиран склад .
-Контролиран достъп чрез бариера
-Тиха и зелена жилищна среда
-Структурна мазилка
-Външни и вътрешни парапети от ковано желязо
-Лед осветление

✔️Степен на завършеност :
- Ел. инсталацията с поставени ключове и контакти;
- ВиК изпълнени до тапа с монтирани водомери;
- Положена инсталация за кабелна телевизия и интернет;
- Домофонна система с видео наблюдение.
- Монтирана входна блиндирана врата;
- Фасадната дограма - 5-камерна ПВЦ със стъклопакет с мултифункционално стъкло

🅿️Паркиране :
100% обезпечено паркиране . Без компромиси и без стрес място за всеки автомобил.
Има възможност за покупка както на партерни гаражи , така и на външни паркоместа .

➡️ Инвеститор:
➤ Репутация, подкрепена от опит, стабилност и успешно реализирани проекти.
➤ Гаранция за надеждност, качество и висок стандарт на изпълнение.

📌Локация :
- Комплексът се изгражда в кв. Остромила район, който задава нов стандарт за съвременен градски живот.
- Тук домът Ви е обграден от спокойствие, зеленина и нискоетажно модерно застрояване, създаващо усещане за лична пространство и хармония.

➤ Същевременно - границата с кв. Южен превръща локацията в стратегически избор за минути достигате:
-аптеки и магазини
-Супермаркет Minimart и други хранителни магазини
-офис на Speedy и Еконт
-удобни транспортни връзки
-ключови пътни артерии и бързи връзки с центъра

-Тук получавате тих и уединен жилищен оазис, без да се лишавате от удобствата на динамичен, добре развит градски район.

➡️ ГОЛД ИМОТИ Ви предлага да се възползвате от професионално кредитно посредничество чрез Credit Center при ипотека, потребителски кредит и рефинансиране!
-УСЛУГАТА Е ИЗЦЯЛО БЕЗПЛАТНА!
-ИЗГОТВЯНЕ НА НЯКОЛКО ОФЕРТИ ОТ ВОДЕЩИ БАНКИ!
-НАЙ-ИЗГОДНИ УСЛОВИЯ СПРЯМО ВАШИЯТ ПРОФИЛ!
-НЕ Е НЕОБХОДИМО ДА СЕ РАЗКАРВАТЕ ВЪВ ВСЕКИ КЛОН НА РАЗЛИЧНИ БАНКИ!
➡️ Още атрактивни и актуални оферти може да разгледате на нашият сайт: www.goldhome.bg

📞 За повече информация и при интерес за оглед, моля свържете се с нас.
Преглеждания: 2
Другите търсят също
Препоръчани за теб
Цена:
145 000 € 283 595,35 лв
Цената е с включен ДДС