Продава КЪЩА, гр. Варна, Виница → Обява 51037761

Продава КЪЩА, гр. Варна, Виница, снимка 1 - Къщи - 51037761 Продава КЪЩА, гр. Варна, Виница, снимка 2 - Къщи - 51037761 Продава КЪЩА, гр. Варна, Виница, снимка 3 - Къщи - 51037761 1/3
Продава КЪЩА, гр. Варна, Виница
гр. Варна, Виница Наблюдавай

Публикувана/обновена на 18 май в 09:55 ч.


Квадратура
154 кв. м.
Цена на кв.м.
2727 € кв. м.
Брой етажи
2
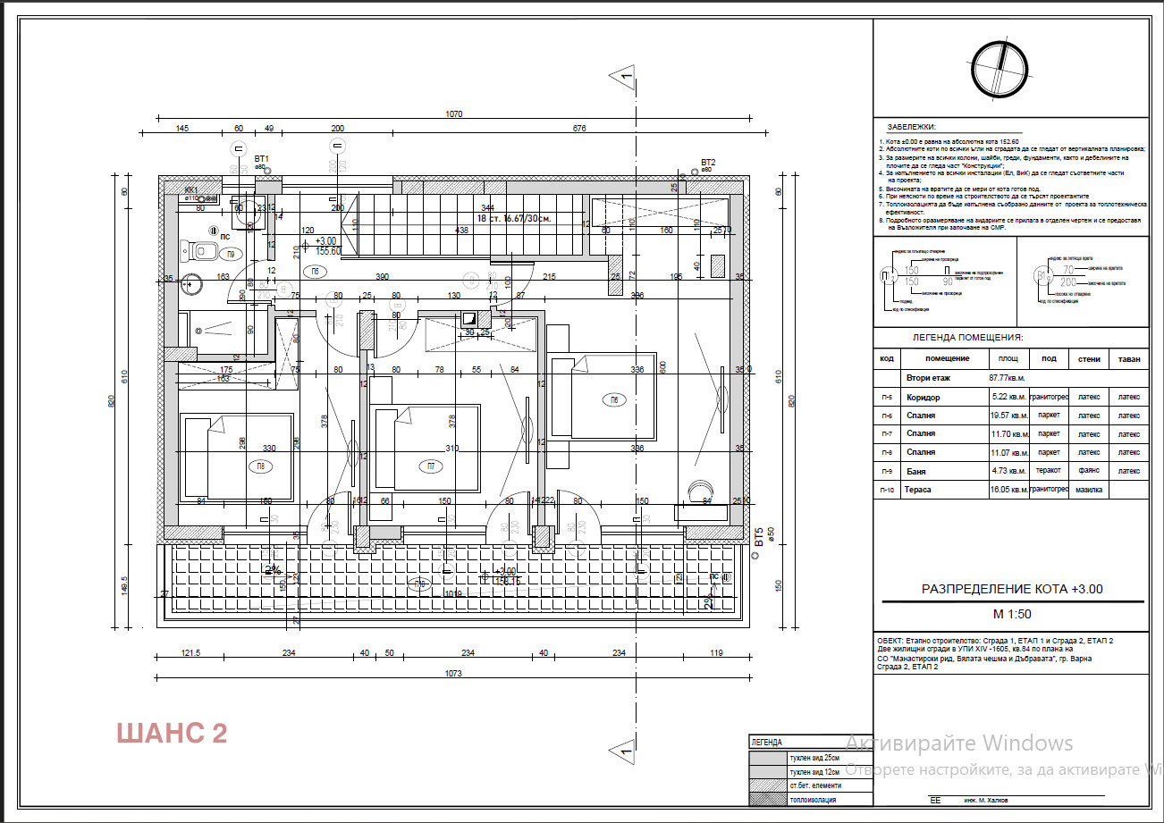
Агенция Шанс 2 Ви предлага за продажба луксозна двуетажна къща с енергийна ефективност и модерни технологии в процес на изграждане, находяща се в кв. Виница, с дворно място от 410 кв.м. Разпределението на имота е практично и комфортно с общо РЗП 154 кв.м. и е със следното разпределение:
На 1-ви етаж са разположени предверие, дневна и трапезария, WC и килер с обща площ 67.00кв.м.
На 2-ри етаж са разположени три просторни спални, коридор, голяма баня с тоалет и голяма тераса, от която се разкрива страхотна панорама. Общата площ на ет. 2 е 87.77кв.м.
В сторителстово на тази къща са използвани най-новите технологии за енергийна ефективност. Построена с мисъл за бъдещето, като предлага не само комфорт, но и значителни спестявания на енергия. Също така, разполага със собствената волтаична система, която осигурява независимост от електропреносната мрежа, а новото поколение вътрешни мазилки гарантират здравословна и приятна атмосфера във всяко помещение. Къщата разполага с просторни и светли стаи, идеални за семейно обитаване и забавления. Разполага със собствен двор и две паркоместа. Имота се намира на спокойна и тиха улица и е чудесена за бъдещият Ви дом. При интерес или въпроси, може да се свържете с нас.
Преглеждания: 216
Другите търсят също
Препоръчани за теб
Цена:
420 000 € 821 448,60 лв
Цената е без ДДС