Продава 2-СТАЕН, гр. Варна, Владислав Варненчик 1 → Обява 51193752

Продава 2-СТАЕН, гр. Варна, Владислав Варненчик 1
гр. Варна, Владислав Варненчик 1 Наблюдавай

Публикувана/обновена на 29 декември 2025г. в 01:15 ч.


Тип апартамент
2-стаен
Квадратура
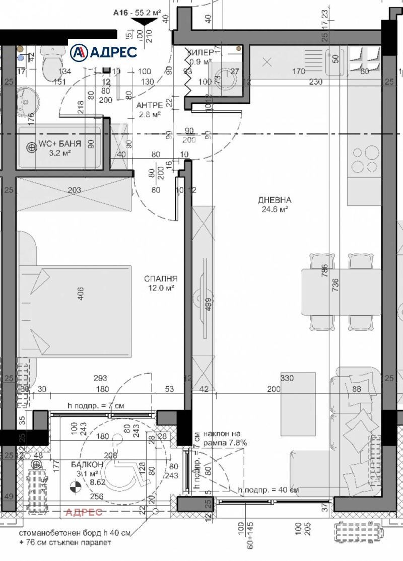
65 кв. м.
Цена на кв.м.
1343 €/кв. м.
Вид строителство
Тухла
Eтаж
4
Година
2025
АП.А16 Стартираме продажбата на нова жилищна сграда в кв.Владислав Варненчик, само на 250м отстояние от СОУ' Пейо Яворов' и кметство Владиславово! Нова пет етажна сграда в строеж, с два входа и само по четири апартамента на етаж. Асансьор и широки общи части приспособени и за инвалиди. Плоски покриви, без скосявания, изцяло покрити етажи -без отстъпи. Изключително практичен жилищен проект, като стаите са достатъчно големи и уютни и във всяко жилище има поне по два санитарни възела. В тристайните апартаменти спалните са със собствен дрешник и още три сервизни помещения. Практично, удобно и функционално! Моля разгледайте архитектурния проект към всяка обява, за по обстойна информация! Разсрочена схема на плащане!

Избор на двустайни и тристайни апартаменти, подземни и надземни паркоместа и гаражи. Сградата е в непосредствена близост до автобусна спирка, с лице към асфалтов път. Тази нова кооперация се намира само на 250м отстояние от СОУ' Пейо Яворов' и кметство Владиславово!
Тази нова кооперация се намира само на 250м отстояние от СОУ' Пейо Яворов' и кметство Владиславово!
Нова пет етажна сграда в строеж, с два входа и само по четири апартамента на етаж. Асансьор и широки общи части приспособени и за инвалиди. Плоски покриви, без скосявания. Моля разгледайте архитектурния проект към всяка обява, за по обстойна информация! Разсрочена схема на плащане!
АП.А16 Големи площи, няколко сервизни и мокри помещение към всеки един апартамент.

Възможно кредитиране;
Обади се сега и цитирай този код 662394
Преглеждания: 96
Другите търсят също
Препоръчани за теб
Цена:
87 300 € 170 743,96 лв
Не се начислява ДДС