ОСТАВАТ
00часа
00мин.
00сек.
до големите отстъпки на
Ден за разпродажби

Продава КЪЩА, с. Нови хан, област София област → Обява 51974960

Продава КЪЩА, с. Нови хан, област София област, снимка 1 - Къщи - 51974960 Продава КЪЩА, с. Нови хан, област София област, снимка 2 - Къщи - 51974960 Продава КЪЩА, с. Нови хан, област София област, снимка 3 - Къщи - 51974960 Продава КЪЩА, с. Нови хан, област София област, снимка 4 - Къщи - 51974960 Продава КЪЩА, с. Нови хан, област София област, снимка 5 - Къщи - 51974960 Продава КЪЩА, с. Нови хан, област София област, снимка 6 - Къщи - 51974960 1/6
Продава КЪЩА, с. Нови хан, област София област
с. Нови хан, София област Наблюдавай

Публикувана/обновена на 08 януари в 13:05 ч.


Квадратура
205 кв. м.
Цена на кв.м.
1707 € кв. м.
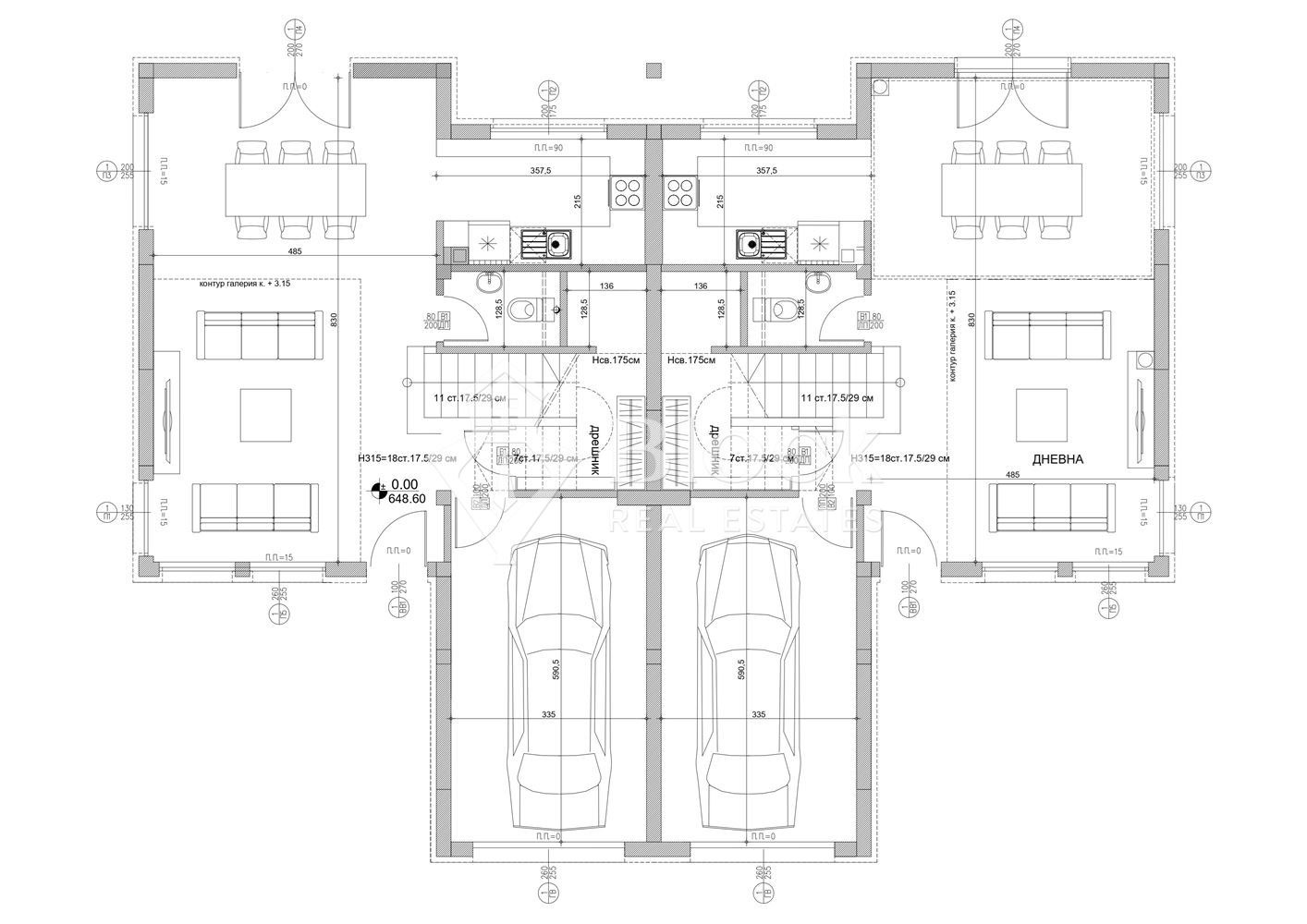
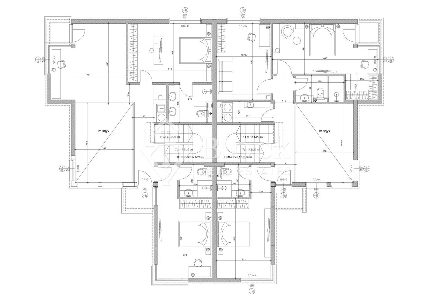
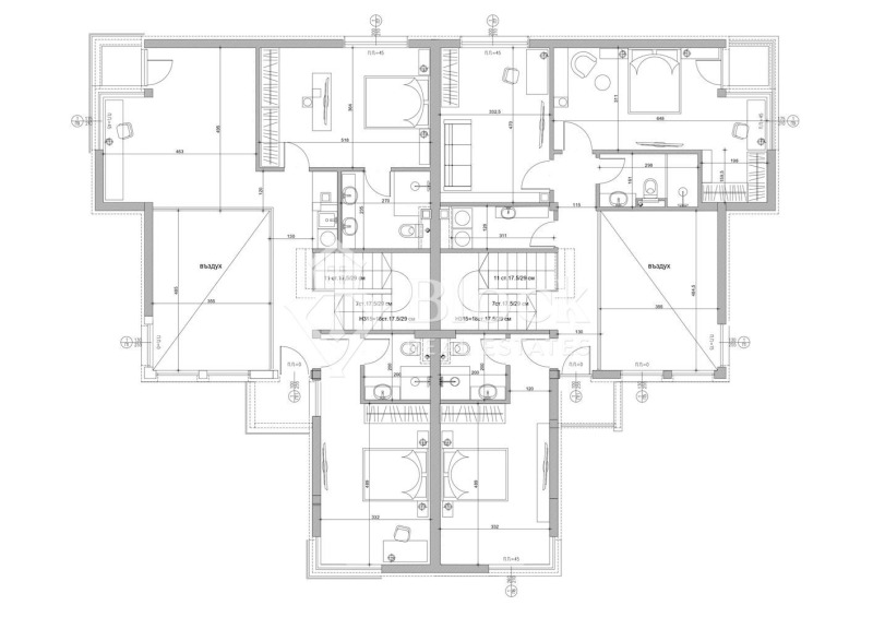
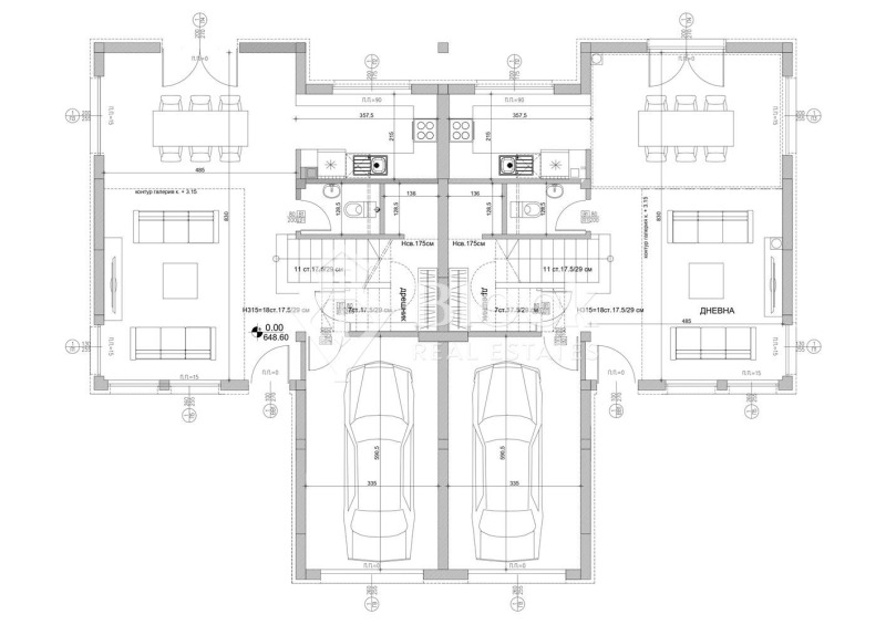
НОВ ПРОЕКТ 2 КЪЩИ БЛИЗНАЦИ В С. НОВИ ХАН

Предлагаме за продажба две еднофамилни къщи тип близнаци , част от новостартирал жилищен проект в с. Нови хан, само на няколко минути от София с удобен достъп по автомагистрала Тракия . Всеки от имотите е проектиран с внимание към детайла и предлага следното функционално разпределение:

ЕТАЖ 1 - Входно антре с дрешник, огромен хол с кухненски кът, трапезарна част и топла връзка към гараж.

ЕТАЖ 2 - Две спални, всяка разполагаща със собствена баня с тоалетна и помещение подходящо за кабинет или трета спалня.

Всяка от къщите разполага с двор подходящ за озеленяване и зона за отдих. Районът е тих и зелен, с постоянно живеещи съседи и добре развита инфраструктура.

Имотите се предлагат на степен на завършеност шпакловка и замазка, което позволява на бъдещите собственици да ги довършат според личния си стил и предпочитания, за което може да получат допълнително съдействие от изпълнителя на проекта. Строителството вече започна, а закупуването на имот в този етап дава възможност за по-голяма гъвкавост при бъдещото довършване.

Районът на с. Нови Хан се превърна в една от най-предпочитаните дестинации за живеене за хората, които искат да избягат от шума и напрегнатото ежедневие на столицата. В същото време разстоянието до центъра на София е 24 км. по магистрала 'Тракия', която е само на 500м.

Посочената цена е без ДДС.

Обадете се сега и се възползвайте от възможността да станете собственик на бутиков имот без аналог на пазара! Цитирайте код: 277
Преглеждания: 136
Другите търсят също
Препоръчани за теб