Продава 4-СТАЕН, гр. София, Павлово → Обява 52274643

Продава 4-СТАЕН, гр. София, Павлово
гр. София, Павлово Наблюдавай

Публикувана/обновена на 24 ноември 2025г. в 13:27 ч.


Тип апартамент
4-стаен
Квадратура
152 кв. м.
Цена на кв.м.
2231 €/кв. м.
Вид строителство
Тухла
Eтаж
4
Година
2025
VISTATE представя завършен До ключ четиристаен апартамент в кв. Павлово, в близост до бул. Пушкин, магазини, детска градина, спирки на градския транспорт и др.
'Аркадия Дом на Хармония' пренася забързаното ежедневие в спокойна и отпускаща атмосфера максимално близо до природата. Сградата се изпълнява с естествени материали и съвременни технологии. Вентилируема окачена фасада от естествен камък с топлоизолация от каменна вата допринасят за оптималната температура в помещенията през цялата година. Слънцезащитни фасадни елементи, разнообразяващи текстурата. Алуминиева дограма с троен стъклопакет в графитеносив цвят. Лоби оформено като своеобразна вътрешна градина с декоративни дръвчета, стенни облицовки и акцентно осветление. Луксозен асансьор, достигащ от подземния паркинг до пентхауса на последния етаж.
Сградата разполага с 13 премиум апартамента.
Всички имоти се продават в степен на завършеност 'До ключ', което включва подови настилки, боядисани стени в желания цвят, интериорни врати, завършени бани - мивка със смесител, вградена конструкция, душ с две функции (Rain/SmartRain) и ръчен душ с три функции, линеен сифон и ревизионен сифон. Изградена инсталация за отопление и охлаждане посредством термопомпа, като всички външни тела ще бъдат скрити в специална ниша. Сградата ще бъде захранена с газ, което предлага възможност за избор на вида отопление.Екипът дизайнери на VIDESIGN ще Ви насочва с професионални съвети на всяка стъпка до реализирането на проекта.

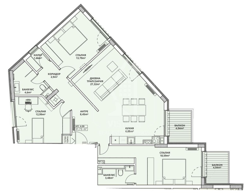
Разпределение:
Просторна дневна с трапезария, кухненски бокс и тераса
Основна спалня с дрешник, баня и тераса
Две спални със споделена баня
Дрешник
Мокро помещение/склад

Предимства:
Премиум сграда
Готови за нанасяне апартаменти
Естествени материали в хармония с природата
Вътрешна градина
Отлична локация в полите на Витоша

Към апартамента има предвиден двоен гараж на цена 42 000 евро.

Цените са без включено ДДС.

Допълнителни услуги от VISTATE на преференциални условия като част от Vaisman Investment Group:
? Консултация с VIDESIGN за изготвяне на индивидуален интериорен проект и завършване до ключ
? Възможност за довършителни дейности с VIBRIX
? Финансова и юридическа консултация
? Управление и поддръжка на имоти
Преглеждания: 95
Другите търсят също
Препоръчани за теб
Цена:
339 155 € 663 329,52 лв
Цената е без ДДС