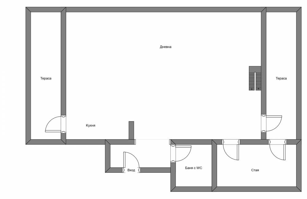
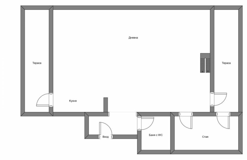
АДРЕС НЕДВИЖИМИ ИМОТИ
В Bazar.BG от 11 септември 2013г.
Последно активен
днес в 19:09 ч.
Още оферти на https://address.imot.bg












