Продава 3-СТАЕН, гр. София, Кръстова вада → Обява 52623793

Продава 3-СТАЕН, гр. София, Кръстова вада, снимка 1 - Апартаменти - 52623793 Продава 3-СТАЕН, гр. София, Кръстова вада, снимка 2 - Апартаменти - 52623793 1/2
Продава 3-СТАЕН, гр. София, Кръстова вада
гр. София, Кръстова вада Наблюдавай

Публикувана/обновена на 05 февруари в 10:51 ч.


Тип апартамент
3-стаен
Квадратура
171 кв. м.
Цена на кв.м.
2386 €/кв. м.
Вид строителство
Тухла
Година
2026
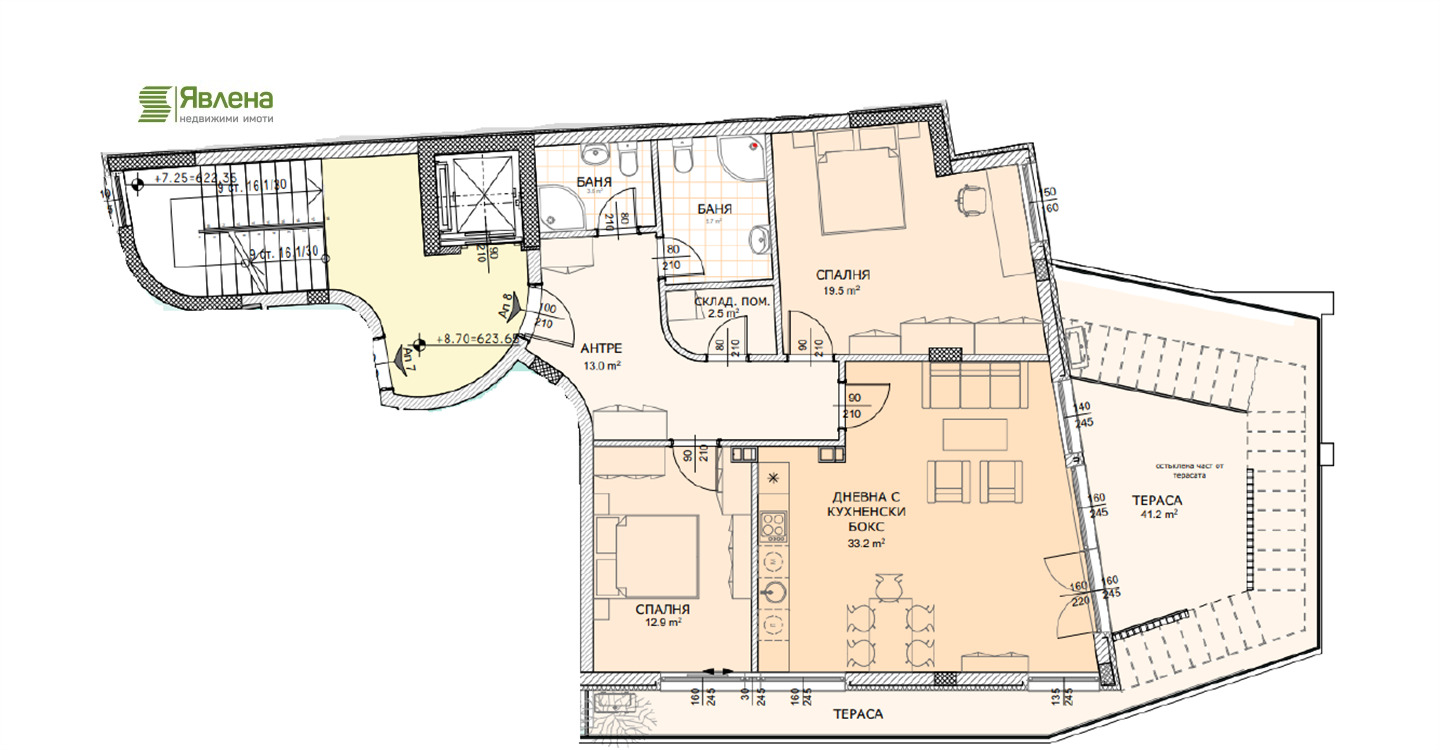
Разположена в квартал Кръстова вада, в непосредствена близост до Paradise Center и метростанция Витоша , тази луксозна новострояща се жилищна сграда предлага модерна архитектура, висококачествени материали и удобства, които осигуряват комфорт и стил на живот от най-висок клас. Очакван Акт 16 средата на 2026 г. Перфектно местоположение: - Метростанция Витоша на 10 минути пешеходно разстояние - Paradise Center на 10 минути пешеходно разстояние - Южен парк в непосредствена близост за спорт, разходки и отдих - Престижни училища и детски градини в района - Офис центрове, супермаркети и заведения на пешеходно разстояние Разположение: Етаж 3-ри жилищен над партер Площ: 171,44 м² Разпределение: - Просторна дневна с кухненски бокс и трапезария - Две спални - Две бани - Антре - Две тераси панорамни гледки Предимства: - Просторни и светли помещения с висококачествени френски прозорци - Две санитарни помещения за удобство и комфорт - Модерен стил с висок клас материали - Възможност за закупуване на паркомясто Жилищната сграда, предлагаща престиж и удобство е идеалена за модерни и активни семейства и инвеститори, които търсят качество, комфорт и престижна локация. Свържете се с нас за повече информация и огледи! /Yavlena COM - 154343/
Преглеждания: 98
Другите търсят също
Препоръчани за теб
Цена:
408 000 € 797 978,64 лв
Цената е с включен ДДС