Продава КЪЩА, гр. Бургас, Ветрен → Обява 52719842

Продава КЪЩА, гр. Бургас, Ветрен
гр. Бургас, Ветрен Наблюдавай

Публикувана/обновена днес в 12:32 ч.


Квадратура
181 кв. м.
Цена на кв.м.
1409 € кв. м.
Предлагаме за продажба две бутикови новостроящи се къщи в тихата и зелена местност на кв. Ветрен, гр. Бургас локация, която съчетава спокойствие и отлична свързаност с града.

Районът е предпочитан заради чистия въздух, бързия достъп до центъра и плажа (20 минути), близостта до болница Дева Мария (3 минути) и минералните извори с парк (3 минути).

Всяка от къщите е напълно независима, със собствен вход, двор и индивидуално разпределение.

Къща 1 разполага с 230 кв.м двор и 181 кв.м РЗП.

Къща 2 предлага 215 кв.м двор и 181 кв.м РЗП.

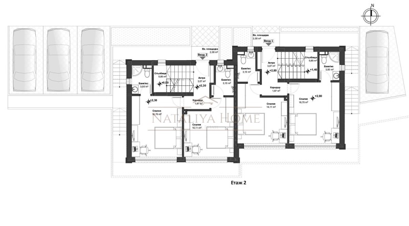
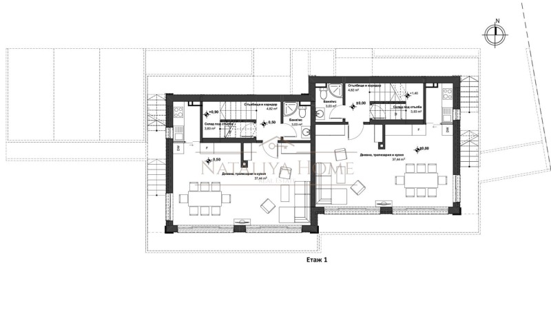
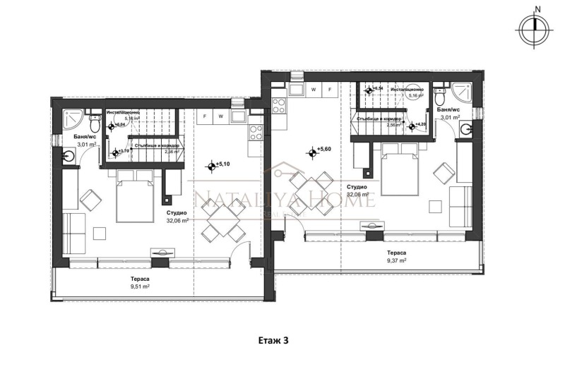
Разпределението е идентично и изключително практично:

Първи етаж 60.24 кв.м: просторна дневна зона с трапезария и кухня, баня с тоалетна и голяма веранда към двора.

Втори етаж 60.24 кв.м: две самостоятелни спални, всяка със собствена баня и тоалетна.

Трети етаж 60.54 кв.м: голяма родителска спалня с баня и тоалетна, както и просторна тераса с гледка към околността.

Модерната и изчистена архитектура, големите прозорци и обилната естествена светлина създават усещане за простор и комфорт.

Проектирани са с внимание към детайла и предлагат функционални вътрешни решения, осигуряващи уединение и удобство за всяко семейство.

Към всяка къща са включени по две удобни и сигурни паркоместа.

Тези два имота представляват отличен избор за семейства, които търсят комфорт, модерна визия, самостоятелност и близост до природата, без да се лишават от удобствата на града.

Имотите са подходящи както за инвестиция, така и за бъдещ дом.
Преглеждания: 1
Другите търсят също
Препоръчани за теб
Цена:
498 736,65 лв 255 000 €
Не се начислява ДДС