Дава под наем ОФИС, гр. София, Витоша → Обява 52825263

Дава под наем ОФИС, гр. София, Витоша
гр. София, Витоша Наблюдавай

Публикувана/обновена на 06 януари в 12:00 ч.


Квадратура
200 кв. м.
Представяме Ви МНОГОФУНКЦИОНАЛЕН ОФИС на отлична локация и непосредствена близост до бул. 'Симеоновско шосе' - ул. Братя Чакрин 10.

Мястото е изключително комуникативно, в близост са бдеща метростанция, спирки на градски транспорт, хипермаркет 'Кауфланд', банки, фитнеси и медицински центрове. За Ваше улеснение и придобиване на представа за локацията на бдещата метростанция спрямо предлагания от нас офис, прилагаме генерална схема на метрото в София. Имотът изключително функционален и може да бъде ползван за най-различен вид търговска дейност.

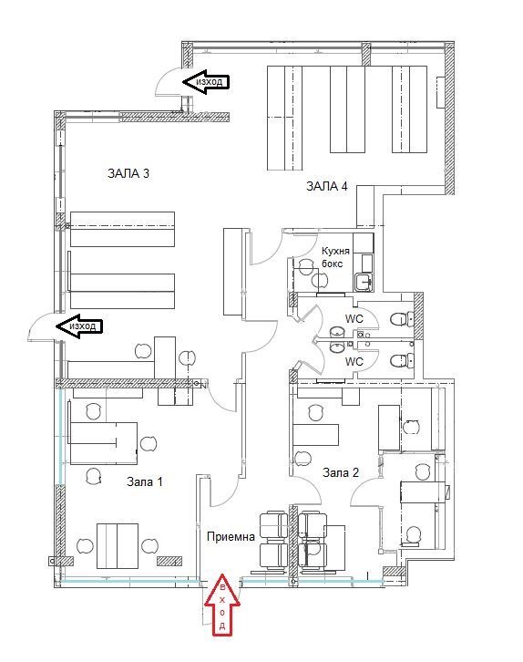
Офисът е разположен на партерен етаж с чиста застроена площ от 173 кв.м. Две от залите са с гоелми френски прозорци и лице към улицата. Разполага с три отделни входа. За допълнителна сигурност са монтирани ролетни решетъчни врати на всеки вход и изход. Вградено окабеляване и климатици във всяка зала. Настилки са гранитогрес и ламиниран паркет, а тавана е растерен окачен.

Разпределението е следното:

-Приемна
-Голяма работна зала с два отделни входа
(възможност за разделяне на две отделни зали при нужда)
-Конферентна зала
-Трета отделна зала
-Кухненски бокс
-Две тоаелтни

Офисът се отдава необзаведен!

Цената е без ДДС.

Обадете се сега и цитирайте този код: 63 233
Преглеждания: 42
Другите търсят също
Препоръчани за теб
Цена:
1 100 € 2 151,41 лв
Цената е без ДДС