ОСТАВАТ
00часа
00мин.
00сек.
до големите отстъпки на
Ден за разпродажби

Продава МАГАЗИН, гр. София, Витоша → Обява 53001451

Продава МАГАЗИН, гр. София, Витоша, снимка 1 - Магазини - 53001451 Продава МАГАЗИН, гр. София, Витоша, снимка 2 - Магазини - 53001451 Продава МАГАЗИН, гр. София, Витоша, снимка 3 - Магазини - 53001451 Продава МАГАЗИН, гр. София, Витоша, снимка 4 - Магазини - 53001451 Продава МАГАЗИН, гр. София, Витоша, снимка 5 - Магазини - 53001451 1/5
Продава МАГАЗИН, гр. София, Витоша
гр. София, Витоша Наблюдавай

Публикувана/обновена на 20 януари в 12:37 ч.


Квадратура
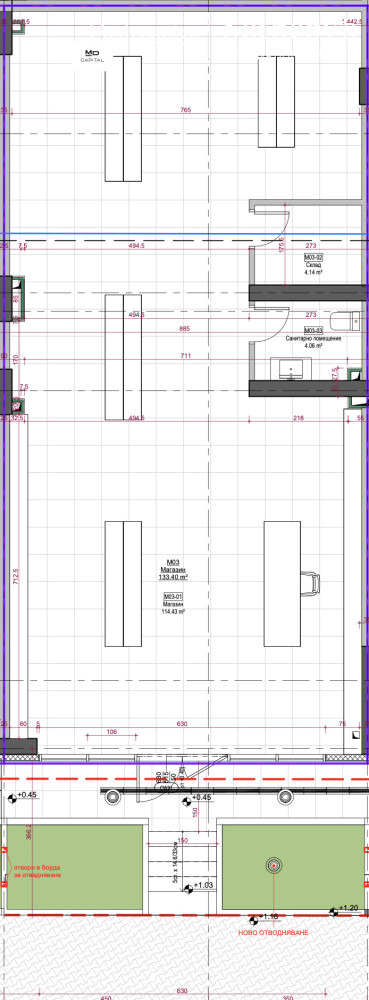
157 кв. м.
Цена на кв.м.
2401 € кв. м.
BULGARIA SOTHEBY’S INTERNATIONAL REALTY представя на Вашето внимание магазин на ниво партер, предлагащ площ от 157 кв.м, с възможност за изграждане на две нива. Пред Акт 15.

ТЕХНИЧЕСКИ ХАРАКТЕРИСТИКИ НА ИМОТА:

Височина на таваните 6 метра;
Имотът се намира в сграда от ново поколение, която предоставя сигурност, иновативност, красота и хармония, която ще бъде с енергиен клас „А“ и ще разполага с фотоволтаици на покрива на сградата;
Сградата е построена с много висок клас материали;
Дограма Rehau с алуминиево външно покритие;
Електроинсталацията е разработена като самостоятелна за всеки от входовете с оглед по-лесна експлоатация. Присъединяването на сградата към електрическата мрежа ще се осъществи от новоизграден трафопост.

ПРЕДИМСТВА НА ИМОТА:

Възможността за персонализиране на пространството за магазин, офис, козметичен център, бюти център, медицински център, представителство на компания и други.
Комплексът ще разполага с видеонаблюдение и денонощна охрана на входа на сградата;
Сградата е проектирана с оптимални енергийни характеристики, които позволяват употребата на по-малко енергия и оптимизирането ? по максимално добър начин. Общата консумация на енергия за всички нужди на сградата е два пъти по-ниска от тази на сградите ново строителство в София.

ЛОКАЦИЯ НА ИМОТА:

Сградата се намира в южна София в близост до метростанция „Витоша“, МОЛ „Парадайс“ и Зоопарк София. Достъпът е лесен и бърз по основни булеварди като „Черни връх“, „Филип Кутев“, „Симеоновско шосе“, ул. „Сребърна“ и др.

Цената е без ДДС.

Ref 7193
Преглеждания: 64
Другите търсят също
Препоръчани за теб