Продава 3-СТАЕН, гр. София, Център → Обява 53025226

Продава 3-СТАЕН, гр. София, Център
гр. София, Център Наблюдавай

Публикувана/обновена на 07 януари в 20:54 ч.


Тип апартамент
3-стаен
Квадратура
98 кв. м.
Цена на кв.м.
2587 €/кв. м.
Вид строителство
Тухла
Eтаж
7
Година
2026
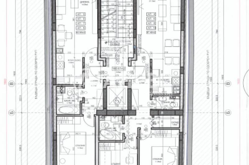
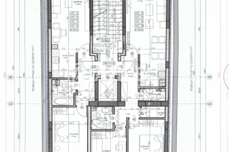
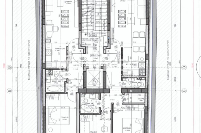
- Елегантна нова кооперация с АКТ - 14 , намираща се на комуникативно местоположение , непосредствено до парк ' Св. Петър и Павел ' , в близост / на около ~ 500 м. / до метростанция ' Константин Величков ' , до различни учебни заведения , търговски обкети , както множество други удобства и комуникации.

- Разположен на седми последен етаж , Ап. 30 / е изложен на изток и запад. Състои се от / 89,30 кв.м. / жилищна площ , разпределени във : входно антре със складово помещение , голям и светъл хол с трапезария и кухненски бокс / 31,8 кв.м. / , баня , отделна тоалетна , две големи самостоятелни спални , както две тераси със страхотен изглед.

- Жилището се предава с най-висок клас пет камерна PVC дограма / KÖMMERLING / с троен стъклопакет , външна блиндирана врата , поставени алуминиеви радиатори , поставени изводи за климатици , както и изградени инсталации. Паркоместа за продажба на цена от 35 000 Евро. Луксозни общи части с контрол на достъпа и видео наблюдение.

- Повече информация , уговорки относно огледи , както професионално съдействие за кредитиране от лицензирания ни финансов консултант , на тел . : 0887 776 190
Преглеждания: 13
Другите търсят също
Препоръчани за теб
Цена:
253 500 € 495 802,91 лв
Не се начислява ДДС