ОСТАВАТ
00часа
00мин.
00сек.
до големите отстъпки на
Ден за разпродажби

Продава 3-СТАЕН, гр. София, Зона Б-19 → Обява 53229745

Продава 3-СТАЕН, гр. София, Зона Б-19, снимка 1 - Апартаменти - 53229745 1/1
Продава 3-СТАЕН, гр. София, Зона Б-19
гр. София, Зона Б-19 Наблюдавай

Публикувана/обновена на 26 януари в 12:27 ч.


Тип апартамент
3-стаен
Квадратура
97 кв. м.
Цена на кв.м.
2028 €/кв. м.
Вид строителство
Тухла
Eтаж
4
Година
2027
MG Homes Недвижими имоти представя на вашето внимание тристаен апартамент в новострояща се сграда в жк.Зона Б-19. Наличен е на трети, четвърти, пети и шести етаж. Обектът е разположен на комуникативна локация в близост до супермаркети, училища, детски градини, аптеки, ресторанти, парк 'Св.св. Петър и Павел', на пешеходно разстояние от множество спирки на градски транспорт, както и от метростанция Константин Величков и всичко необходимо за комфортния живот на едно домакинство.

БЕЗ КОМИСИОННА!
ЦЕНИ ОТ ИНВЕСТИТОР!

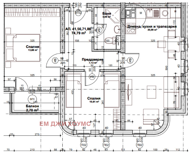
Апартаментът е разположен както следва: дневна, кухня и трапезария; предверие, баня, спалня с излаз към балкон и спалня.
Застроена площ: 74.79 m2
Обща площ:97.22 m2
Етаж: трети жилищен етаж
Акт 16 се очаква 2027г.

Възможност за закупуване на подземни и надземни паркоместа и гаражи на цени от 36.000 EUR, и складови помещения на цени от 8.900 EUR.

Гъвкави схеми на плащане с възможност:
1. 20% - в седем дневен срок от подписване на Предварителния договор;
2. 80% - при издаване на Разрешение за ползванe (Акт 16);
ЗАБ.: ЦЕНАТА СЕ ОСКЪПЯВА С 12%. (При втори вариант)

Луксозна сграда от строител с дългогодишен опит в сферата.

ВСИЧКИ ЦЕНИ СА С ВКЛЮЧЕНО ДДС !

MG Homes предоставя безплатна консултация и съдействие при финансиране на избрания от Вас имот от всички водещи банки в страната и ще договори най-добрите условия за вас!
Преглеждания: 5
Другите търсят също
Препоръчани за теб
Цена:
196 750 € 384 809,55 лв
Цената е с включен ДДС