ОСТАВАТ
00часа
00мин.
00сек.
до големите отстъпки на
Ден за разпродажби

Продава 3-СТАЕН, гр. София, Младост 1 → Обява 53235582

Продава 3-СТАЕН, гр. София, Младост 1
гр. София, Младост 1 Наблюдавай

Публикувана/обновена днес в 18:58 ч.


Тип апартамент
3-стаен
Квадратура
115 кв. м.
Цена на кв.м.
2392 €/кв. м.
Вид строителство
Тухла
Eтаж
4
Година
2026
Comfort Properties Group има удоволствието да Ви представи Тристаен Апартамент в нова жилищна сграда в близост до един от основните булеварди на София Цариградско шосе и на няколко минути от Орлов мост в кв. Полигона

Характеристика на Имота:

Апартамента е разположен на 4 етаж от 10 етажна жилищна сграда, с площ от 114.60 кв.м с общи части и 97.10 кв.м застроена площ.

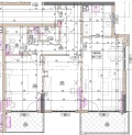
Разпределение:

Антре 9.76 кв.м

Дневна с трапезария и кухненски бокс 26.53 кв.м

Спалня 13.77 кв.м

Спалня 13.76 кв.м

Баня с WC 3.88 кв.м

WC 1.83 кв.м

Склад 0.66 кв.м

Балкон 5.32 кв/м

Балкон 7.18 кв/м

Изложение: Изток

За изграждането на сградата ще бъдат използвани съвременни и качествени технологии и материали.

Характеристики на сградата:
Входно антре и стълбищните площадки гранитогрес/теракота/ или др.
Асансьор.
Изградени връзки с възможност за доставка на кабелна телевизия и интернет.
Стените и таваните в общите помещения гипсова шпакловка и латекс.
Външна топлоизолация на цялата сграда.
Монтирана входна врата на блока.
Вертикалната планировка тротоари, озеленяване и градинско осветление.

Апартаментите ще се издават по БДС:
циментова замазка на пода;
стени и тавани гипсова шпакловка;
бани и тоалетни мазилка на стени и таван;
тераси с гранитогрес /теракот/ или др.;
PVC дограма;
входна врата метална с касова брава;
изпълнена ОВ инсталация до тапа;
изпълнена електрическа инсталация с монтирано апартаментно табло без заредени ключове и контакти;
изпълнена ВиК мрежа от полипропилен и PVC до тапа;
възможност за включване към инсталация за кабелна телевизия и телефон;
изградена домофонна и звънчева инсталация с монтирани тела.

В допълнение има възможност за закупуване на паркоместа:

Паркоместа за един автомобил на цена = 30 000 евро. За два автомобила (едно зад друго) на цена = 45 000 евро с ДДС.

Отлична локация на пешеходно разстояние от:
Супермаркети, магазини и търговски центрове, аптеки, поликлиники, ресторанти, кафенета, спирки на градския транспорт, КАКТО И БЪДЕЩА МЕТРОСТАНЦИЯ НА 5 МИНУТИ ПЕШ, които правят достъпа до всяка точка на града лесен и удобен.

Примерна схема на плащане:

10% на ПД

90% на Акт 16

План на строителството:

Сградата е с Акт 15!
Сградата очаква да бъде въведена в експлоатация / Акт 16
Преглеждания: 9
Другите търсят също
Обяви на потребителя КОМФОРТ ПРОПЕРТИС ГРУП Виж всички 53 обяви
Препоръчани за теб
Цена:
275 044 € 537 939,31 лв
Цената е с включен ДДС