Продава СКЛАД, гр. Пловдив, Индустриална зона - Марица → Обява 53379120

Продава СКЛАД, гр. Пловдив, Индустриална зона - Марица, снимка 1 - Складове - 53379120 Продава СКЛАД, гр. Пловдив, Индустриална зона - Марица, снимка 2 - Складове - 53379120 Продава СКЛАД, гр. Пловдив, Индустриална зона - Марица, снимка 3 - Складове - 53379120 1/3
Продава СКЛАД, гр. Пловдив, Индустриална зона - Марица
гр. Пловдив, Индустриална зона - Марица Наблюдавай

Публикувана/обновена на 06 февруари в 11:06 ч.


Квадратура
315 кв. м.
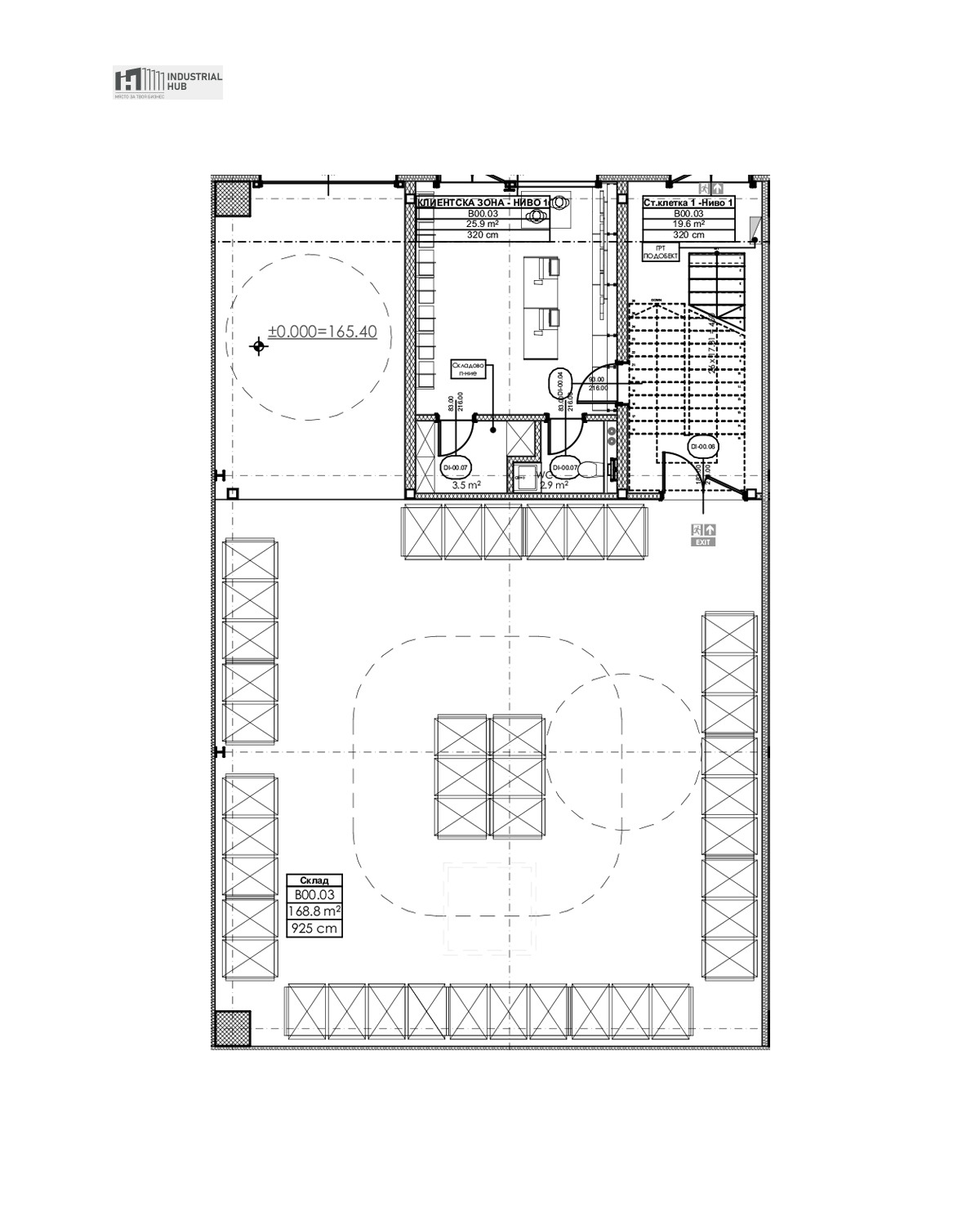
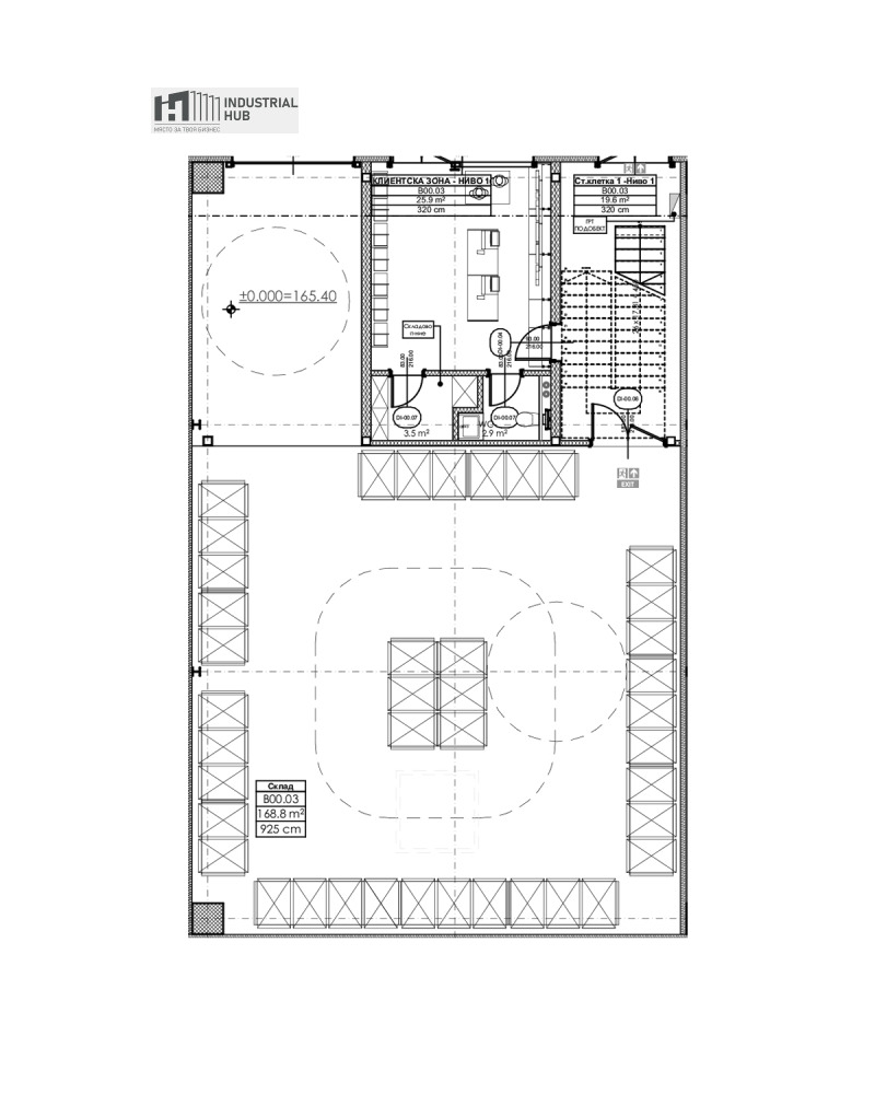
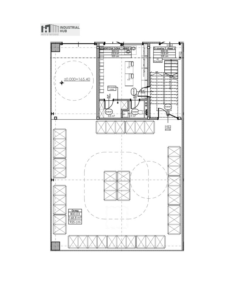
Индустриално складово помещение с офис и търговска част

ID:Base Plus 3

Предлагаме за продажба функционално индустриално складово помещение в Industrial Hub Plovdiv Ring West I, подходящо за складова, логистична, търговска или сервизна дейност.

Площи:
-Застроена площ (ЗП): 230m²
-Разгъната застроена площ (РЗП): 315 m²
-Склад: 168,8 m²
-Офис: 42,8 m²
-Търговски обект: 22 m²
-Битови помещения: 20,6 m²

Паркоместа и зони за индивиуално ползване:
-Зона за паркиране и зареждане: 85 m²
-Паркоместа: 3 бр.

Конструкция и материали:
-Монтажна стоманобетонова конструкция
-Окачена стъклена фасада
-Сандвич панели с минерална вата
-Покрив с TPO мембрана (312 kN/m²)
-Шлайфана бетонова подова настилка
-Алуминиева дограма
-Огнеустойчиви врати до 90 мин.

Технически параметри:
-Височина склад 9m до ЛТ ламарина
-Височина шоурум/офис 4m до ЛТ ламарина
-Размери на товарем вход: Ш 3m. х В 3,5m.
-Осветеност: 566 lux
-Инсталирана мощност: 50 kW
-Максимална мощност: 30 kW
-Трифазно електрическо табло

Имотът е самостоятелен с индивидуален кадастрален идентификатор и отделни партиди за ток и вода. Разполага с удобен достъп за товарни автомобили и възможност за комбиниране на склад, офис и търговска дейност на едно място.

Инвеститорът осигурява професионална поддръжка на обекта:
-FTP интернет инфраструктура
-24/7 видеонаблюдение
-Зарядни станции за електромобили
-Пълна ВиК система
-Дренаж и локална пречиствателна станция
-Дизелов агрегат

Първият индустриален парк в България за малкия и среден бизнес - Industrial Hub Plovdiv Ring West I.

www.industrialhub.bg
Преглеждания: 42
Популярни търсения: ламарина лт