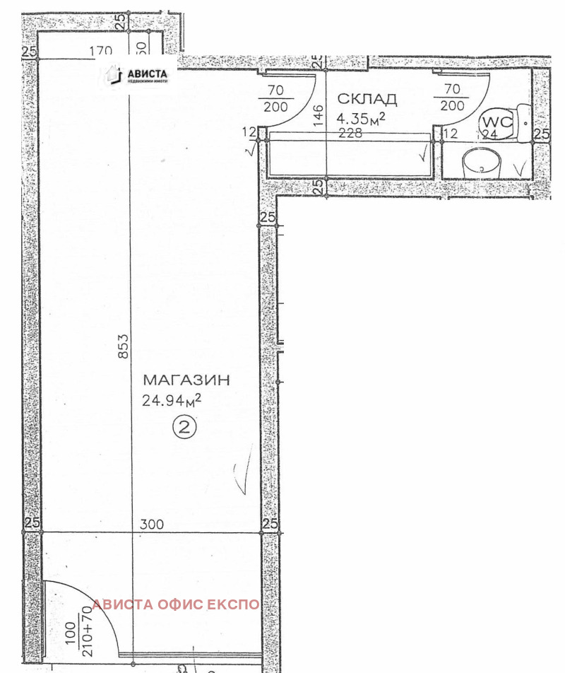
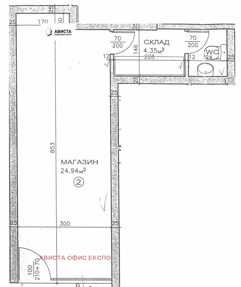
АВИСТА ОФИС ЕКСПО
В Bazar.BG от 11 септември 2013г.
Последно активен
днес в 14:17 ч.
Още оферти на https://expo.imot.bg
