ОСТАВАТ
00часа
00мин.
00сек.
до големите отстъпки на
Ден за разпродажби

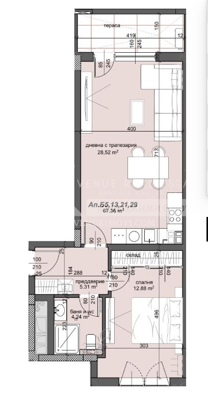
Продава 2-СТАЕН, гр. Пловдив, Тракия → Обява 53690175

Продава 2-СТАЕН, гр. Пловдив, Тракия, снимка 1 - Апартаменти - 53690175 Продава 2-СТАЕН, гр. Пловдив, Тракия, снимка 2 - Апартаменти - 53690175 Продава 2-СТАЕН, гр. Пловдив, Тракия, снимка 3 - Апартаменти - 53690175 Продава 2-СТАЕН, гр. Пловдив, Тракия, снимка 4 - Апартаменти - 53690175 1/4
Продава 2-СТАЕН, гр. Пловдив, Тракия
гр. Пловдив, Тракия Наблюдавай

Публикувана/обновена на 03 март в 09:42 ч.


Тип апартамент
2-стаен
Квадратура
80 кв. м.
Цена на кв.м.
1493 €/кв. м.
Вид строителство
Тухла
Eтаж
2
РЕФ.НОМЕР 39154
? Двустаен апартамент в новострояща се сграда в кв. Тракия Отлична инвестиция!
Представяме Ви двустаен апартамент в модерна новострояща се сграда в кв. Тракия един от най-предпочитаните и бързоразвиващи се райони в Пловдив.
? Основни характеристики:
? Сграда с 10 жилищни етажа
? Модерна архитектура и съвременна визия
? Басейн към сградата комфорт и лукс за живущите
? Отлична локация близо до паркове, магазини, училища и удобен градски транспорт
? Функционално разпределение с оптимално използване на пространството
? Възможност за паркомясто или гараж
? Удобни схеми на плащане:
20% при предварителен договор
80% при Акт 16
?? Подходящ както за лично ползване, така и за инвестиция
?? Висококачествени материали и строителство
?? Без комисионна за купувача
За повече информация, актуални наличности и оглед свържете се с нас още днес! ?
Преглеждания: 45
Другите търсят също
Препоръчани за теб
Цена:
119 410 € 233 545,66 лв
Цената е с включен ДДС