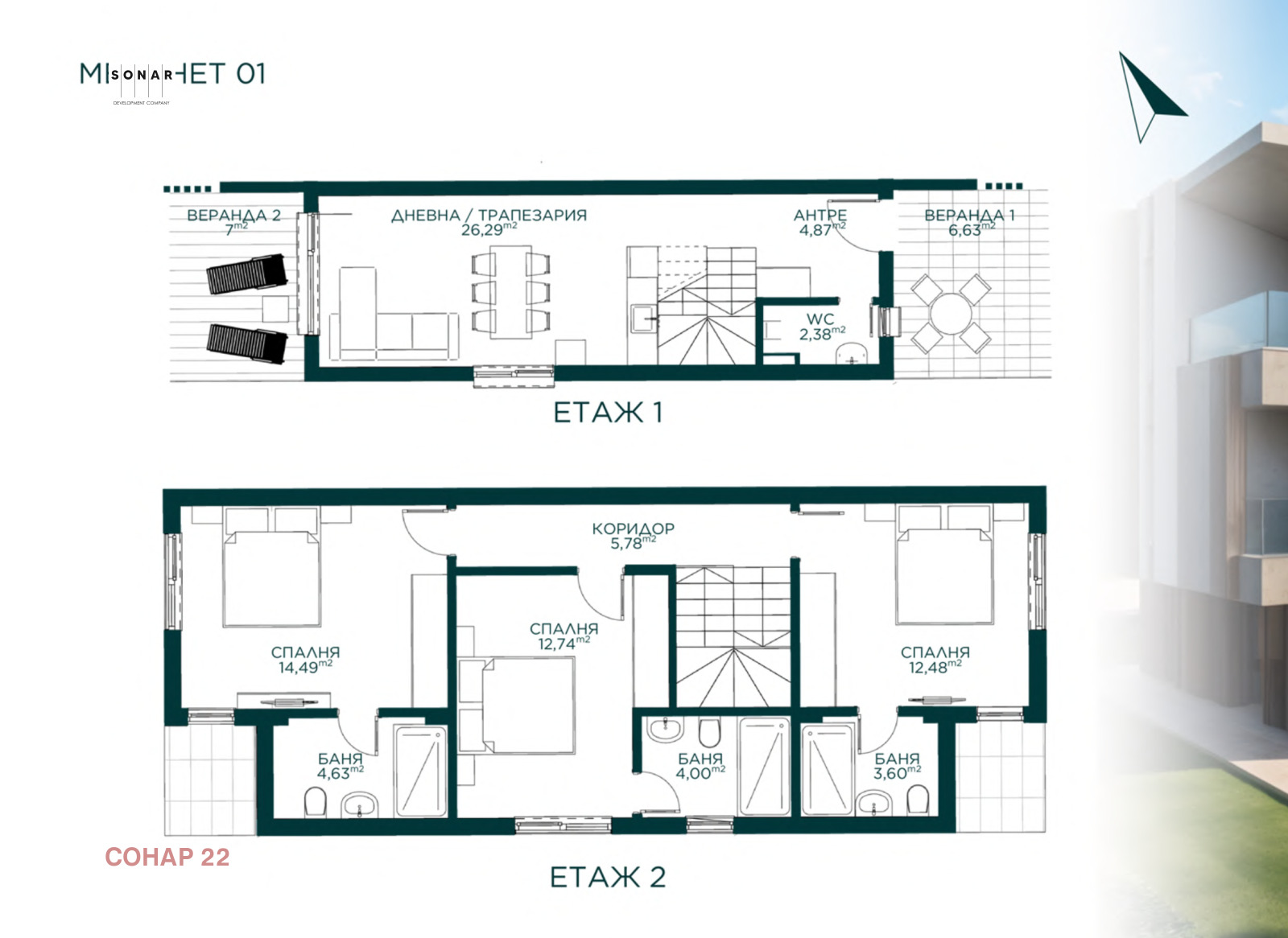
СОНАР 22
В Bazar.BG от 21 февруари 2024г.
Последно активен
днес в 13:41 ч.
Още оферти на https://sonar22.imot.bg
