ОСТАВАТ
00часа
00мин.
00сек.
До края на
Ден за разпродажби

Продава ЕТАЖ ОТ КЪЩА, гр. Шумен, Център → Обява 53993393

Продава ЕТАЖ ОТ КЪЩА, гр. Шумен, Център, снимка 1 - Етаж от къща - 53993393 Продава ЕТАЖ ОТ КЪЩА, гр. Шумен, Център, снимка 2 - Етаж от къща - 53993393 Продава ЕТАЖ ОТ КЪЩА, гр. Шумен, Център, снимка 3 - Етаж от къща - 53993393 1/3
Продава ЕТАЖ ОТ КЪЩА, гр. Шумен, Център
гр. Шумен, Център Наблюдавай

Публикувана/обновена днес в 10:24 ч.


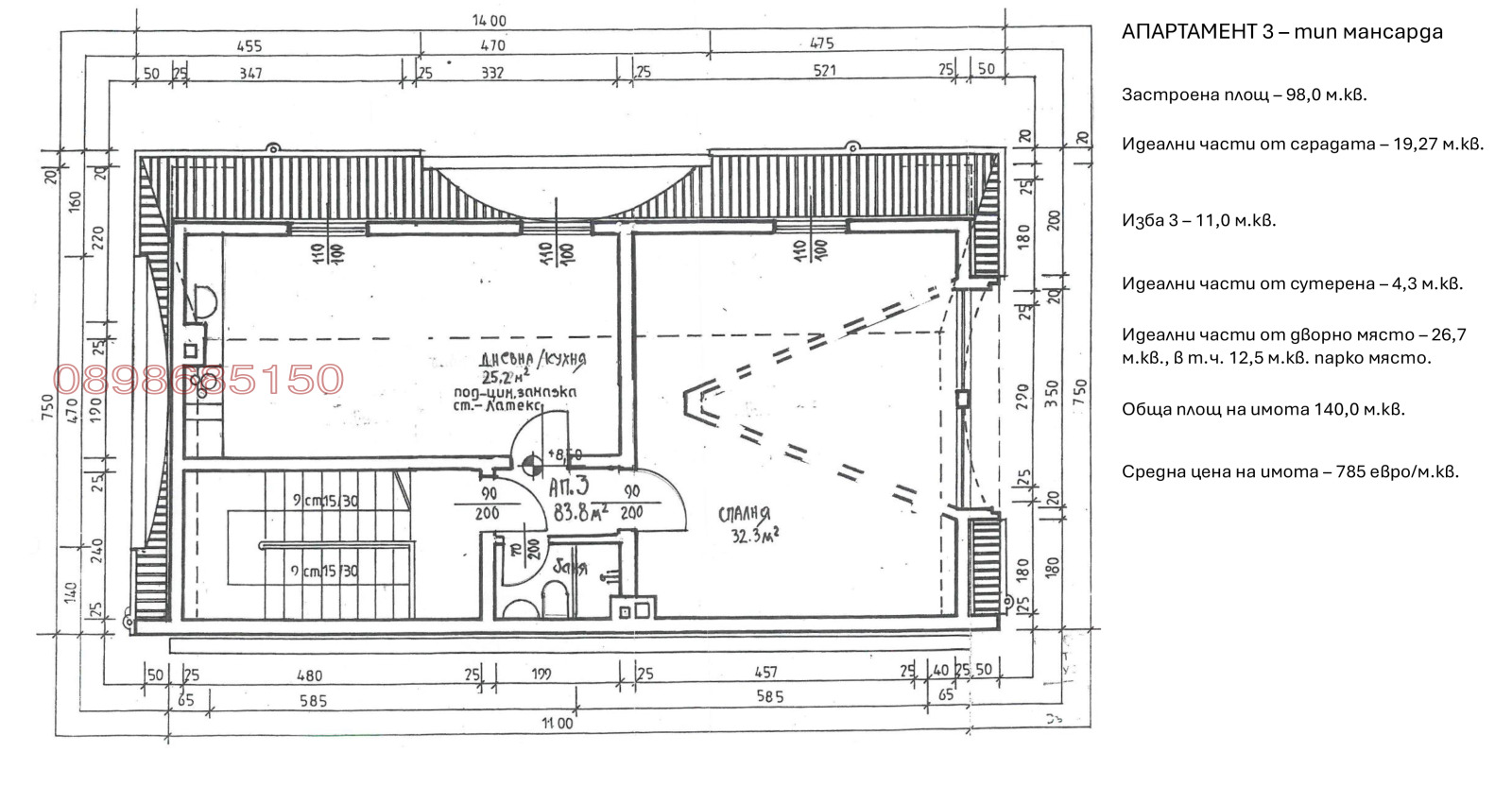
Квадратура
98 кв. м.
Цена на кв.м.
918 € кв. м.
Eтаж
3
Продавам етаж от къща в центъра на гр. Шумен,
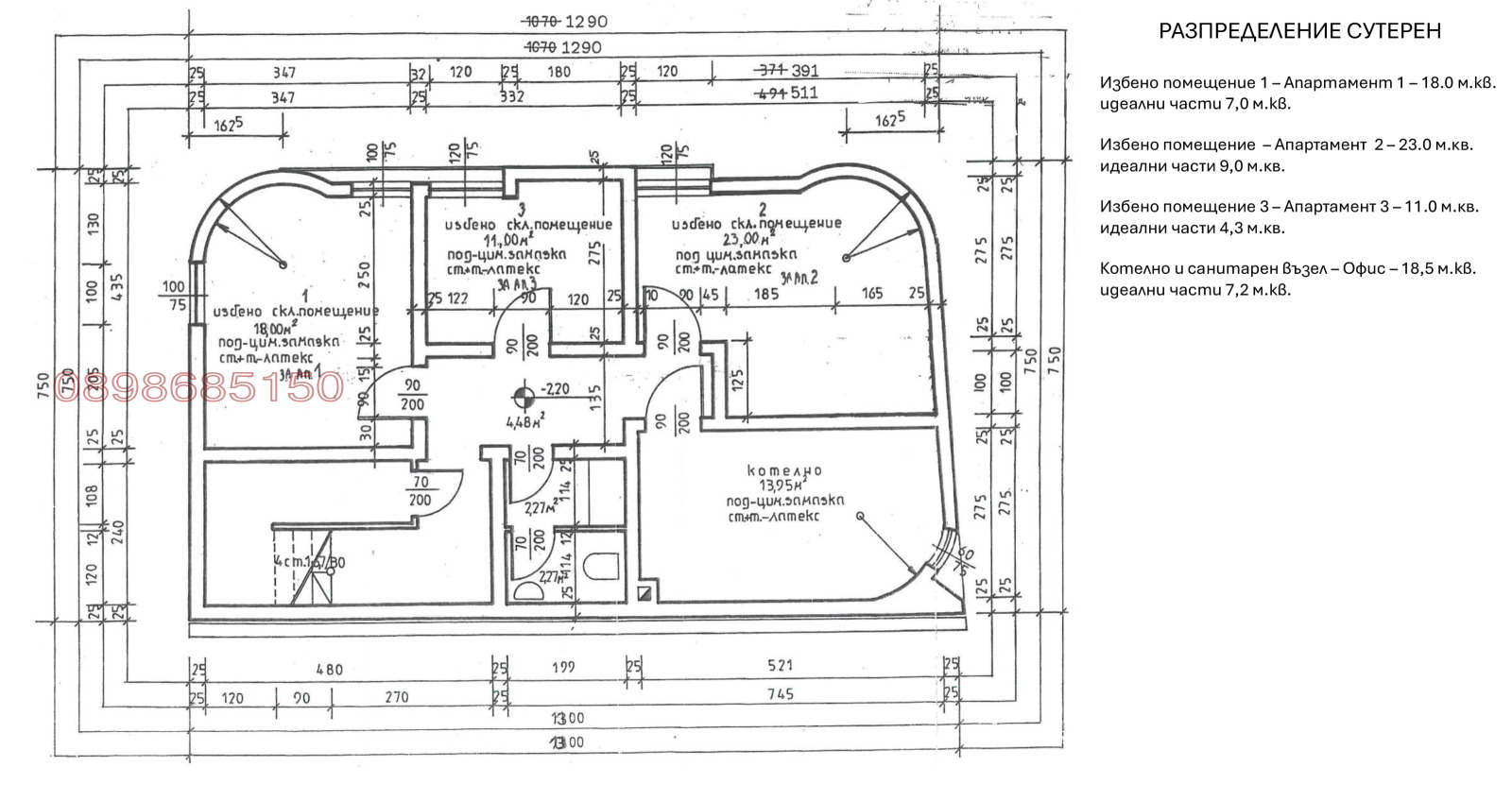
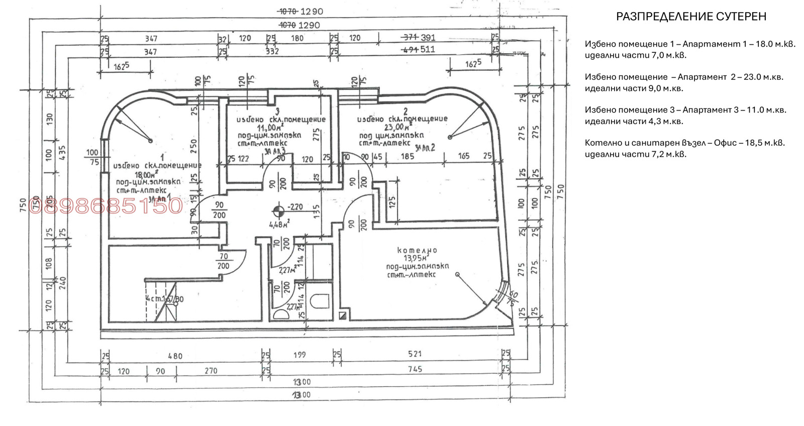
Намиращ се в сграда със смесено предназначение /офисна и жилищна част/ на четвърти мансарден етаж /трети жилищен/, състоящ се от входно преддверие, кухня-дневна, спалня, баня, тоалетна с обща площ на етажа 98,0 м.кв., както и 19,27 м.кв. от идеалните части от сградата. Етажа може да бъде включен към локалното отопление на сградата на газ, като има и резервен вариант - котел на нафта.
Сутеренна част състояща се избено помещение 3 с площ 11,0 м.кв., както и 4,3 м.кв. от идеалните части на сутерена.
Към обекта са включени 22,86% от идеалните части от правото на строеж, заедно с 23,49% идеални части от земята, на които съответстват 26,7 м.кв., в т.ч. 12,5 м.кв. персонално парко място 3.
Сградата е изградена на плоча, от тухла, алуминиева гръцка дограма с термомост, санирана, СОТ, контрол на достъпа, видеонаблюдение, оптичен интернет, с право на ползване на идеалните части от озеленен поддържан двор от 117 м.кв.
Локация в близост до училища и детски градини, както и в непосредствена близост да държавни и общински институции: община, съд, НАП, НОИ, Агенция по вписванията, нотариуси, адвокатски кантори и други.
За контакти тел.: 0898 68 51 50.

Преглеждания: 9
Другите търсят също
Обяви на потребителя Потребител 2333315 Виж всички 7 обяви
Препоръчани за теб
Цена:
90 000 € 176 024,70 лв
Не се начислява ДДС