ОСТАВАТ
00часа
00мин.
00сек.
До края на
Ден за разпродажби

Продава 2-СТАЕН, гр. София, Люлин 5 → Обява 53997030

Продава 2-СТАЕН, гр. София, Люлин 5, снимка 1 - Апартаменти - 53997030 Продава 2-СТАЕН, гр. София, Люлин 5, снимка 2 - Апартаменти - 53997030 Продава 2-СТАЕН, гр. София, Люлин 5, снимка 3 - Апартаменти - 53997030 Продава 2-СТАЕН, гр. София, Люлин 5, снимка 4 - Апартаменти - 53997030 1/4
Продава 2-СТАЕН, гр. София, Люлин 5
гр. София, Люлин 5 Наблюдавай

Публикувана/обновена днес в 15:18 ч.


Тип апартамент
2-стаен
Квадратура
71 кв. м.
Цена на кв.м.
1585 €/кв. м.
Вид строителство
Тухла
Eтаж
9
Година
2026
Реф. 011301

Пред АКТ 16!

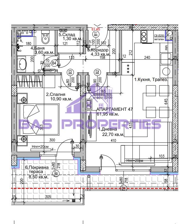
Агенция за недвижими имоти BAS Properties предлага за продажба двустаен апартамент в новострояща се жилищна сграда в жк. Люлин 5. Сградата ще бъде завършена през 2026 година и се намира на перфектна локация с бърз достъп до основните булеварди Царица Йоанна , Д-р Петър Дертлиев , Околовръстен път и бъдещата метростанция Добринова скала .

Основни характеристики:
- Площ: 71,22 кв.м.
- Строителство: Тухла, 2026 г.
- Етаж: 9 от 9
- Отопление: ТЕЦ
- Изложение: Юг

Разпределение на апартамента:
- Входно антре
- Просторна дневна с кухненски бокс
- Спалня
- Баня с тоалетна
- Склад
- Покривна тераса

Информация за сградата:
Локация: Апартаментът се намира в район с перфектна инфраструктура, осигуряваща бърз достъп до главни пътни артерии. Наблизо има големи супермаркети, магазини, детски градини, училища и фитнес зали.
Качество на строителството: Шесткамерна PVC дограма с отлична топло- и звукоизолация, входна блиндирана врата, фина гипсова мазилка на Knauf , тухлени блокове с висока звуко- и топлоизолация, фасадна минерална мазилка, луксозно изпълнени общи части.
Удобства: Асансьор, домофонна инсталация, интернет окабеляване.
Гледка: Прекрасни гледки към Стара планина, Витоша и Люлин планина.

Завършен по БДС:
- Шпакловани стени и подове със замазка
- Монтирани ключове, контакти и фасунги
- ВИК инсталации до тапа, шумоизолирани, затворени с влагоустойчив гипсокартон
- Топлоизолация по проект

Сградата се строи от доказан инвеститор с осем сгради в София. Строителните дейности ще бъдат завършени по високи стандарти, осигуряващи комфорт и лукс на бъдещите собственици.

Този апартамент е идеален за тези, които търсят удобен и модерен дом в сърцето на София с лесен достъп до всички необходими удобства и транспортни връзки.

За повече информация и организиране на огледи, моля свържете се с нас.

Агенцията предлага безплатно съдействие при жилищно кредитиране.
Преглеждания: 3
Другите търсят също
Препоръчани за теб
Цена:
112 500 € 220 030,88 лв
Цената е с включен ДДС