Продава КЪЩА, гр. Варна, м-т Евксиноград → Обява 36576023

Продава КЪЩА, гр. Варна, м-т Евксиноград, снимка 1 - Къщи - 36576023 Продава КЪЩА, гр. Варна, м-т Евксиноград, снимка 2 - Къщи - 36576023 Продава КЪЩА, гр. Варна, м-т Евксиноград, снимка 3 - Къщи - 36576023 Продава КЪЩА, гр. Варна, м-т Евксиноград, снимка 4 - Къщи - 36576023 Продава КЪЩА, гр. Варна, м-т Евксиноград, снимка 5 - Къщи - 36576023 Продава КЪЩА, гр. Варна, м-т Евксиноград, снимка 6 - Къщи - 36576023 Продава КЪЩА, гр. Варна, м-т Евксиноград, снимка 7 - Къщи - 36576023 Продава КЪЩА, гр. Варна, м-т Евксиноград, снимка 8 - Къщи - 36576023 1/8
Продава КЪЩА, гр. Варна, м-т Евксиноград
гр. Варна, м-т Евксиноград Наблюдавай

Публикувана/обновена на 04 август 2024г. в 03:20 ч.


Квадратура
446 кв. м.
Цена на кв.м.
2915 € кв. м.
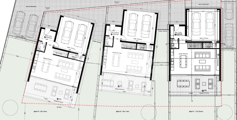
'Купи в България' Ви предлага за продажба луксозни къщи, намираща се на метри от морето и разположена в най-добрата локация за живеене в гр. Варна - м-т Евксиноград. Проектът включва три къщи в парцел с обща площ от 1300 кв.м.

Имотът е със разгърната застроена площ от 446 кв. м и прилежащ двор около 400 кв. м (около 200 кв.м. остават незастроени).

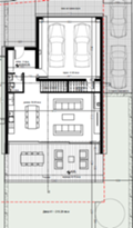
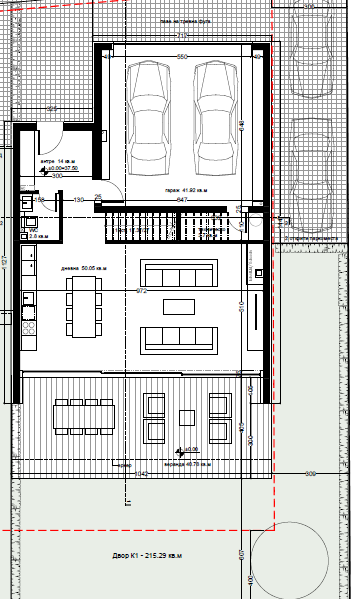
На първия етаж са разположени- входно предверие (14 кв. м), дневна (50.05 кв. м), тоалетна (2.8 кв. м), гараж (41.92 кв. м), техническо помещение (3.65 кв. м). Конструктивна височина на етажа е 3.30 метра, а светлата височина 2.95 метра. Застроената площ на етажа е 130.38 кв. м.

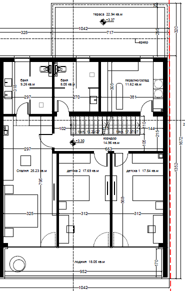
На втория етаж са разположени - коридор (14.96 кв. м,), спалня (25.23 кв.м) с баня (9.26 кв.м), баня (8.05 кв. м), детска стая (17.54 кв. м), детска стая (17.69 кв. м).
Конструктивна височина на етажа 3.10 м, а светлата височина 2.75 м. Застроената площ на втори етаж е 163.82 кв. м.

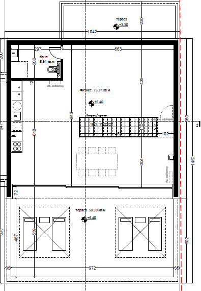
На третия етаж са разположени - фитнес (75.37 кв. м), баня (5.94 кв. м), тераса (58.59 кв. м). Конструктивна височина на етажа 3.10 м, а светлата височина е 2.75 м. Застроената площ на трети етаж е 151.3 кв. м.

Имотите се продават в степен на завършеност по БДС.

Срок за изпълнение:

Към момента е пред Акт 15.
АКТ 16 е предвиден за краят на 2023 г.

За повече информация, организиране на оглед или други въпроси, моля не се колебайте да се свържете с нас на посочените в обявата телефони! ID 22168
Преглеждания: 1 027
Другите търсят също
Препоръчани за теб
Цена:
1 300 000 € 2 542 579 лв
Цената е с включен ДДС