Продава ЗАВЕДЕНИЕ, гр. Пловдив, Център → Обява 50543860

Продава ЗАВЕДЕНИЕ, гр. Пловдив, Център, снимка 1 - Заведения - 50543860 Продава ЗАВЕДЕНИЕ, гр. Пловдив, Център, снимка 2 - Заведения - 50543860 Продава ЗАВЕДЕНИЕ, гр. Пловдив, Център, снимка 3 - Заведения - 50543860 1/3
Продава ЗАВЕДЕНИЕ, гр. Пловдив, Център
гр. Пловдив, Център Наблюдавай

Публикувана/обновена днес в 15:09 ч.


Квадратура
112 кв. м.
Цена на кв.м.
1339 € кв. м.
Оферта 66389: ЕКСКЛУЗИВНА НОВА СГРАДА, САМО ОТ АГЕНЦИЯ 'КОНДОР'!!!



Локация: Имаме удоволствието да Ви представим новият ни обект разположен в Широкия Център с лесен и бърз достъп към изходите на града.
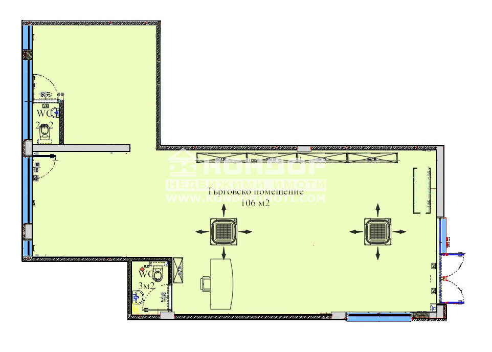
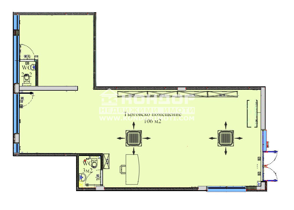
Разположение: Търговският обект е с лице към улица, височина 3.40 м., състои се от едно Г - образно помещение с площ от 106кв.м. с възможност да се обособят две зали и два санитарни възела. Имота е подходящ за ресторант, пицария, сладкарница и други. Към търговското помещение има възможност да се наемат партерни паркоместа за клиентите или да се оформи лятна градина!
Изпълнение: *Стъклена окачена фасада най-висок клас- Алумил с висока енергийна ефективност, повишено ниво на звукоизолация, статичност и функционалност при екстремни природни явления. * Тухли- с високо качество; Асансьори- три броя високоскоростни асансьора, като единия от тях ще бъде товарен. * Озеленяване около сградата с добре изградена и поддържана инфраструктура, покривни тераси с кътове за отдих с общ достъп за живущите.
ВИЖТЕ ОЩЕ ИЗГОДНИ ОФЕРТИ НА https://www.kondorimoti.com/ С ЕЖЕДНЕВНА АКТУАЛИЗАЦИЯ!
Преглеждания: 293
Другите търсят също
Препоръчани за теб
Популярни търсения: ресторант градина пловдив
Цена:
150 000 € 293 374,50 лв
Не се начислява ДДС