Продава КЪЩА, гр. София, м-т Камбаните → Обява 52846123

Продава КЪЩА, гр. София, м-т Камбаните
гр. София, м-т Камбаните Наблюдавай

Публикувана/обновена днес в 11:37 ч.


Квадратура
195 кв. м.
Цена на кв.м.
3436 € кв. м.
ДИРЕКТНО ОТ ИНВЕСТИТОР!
АКТ 15

Билдинг Бокс има удоволствието да Ви представи една от шестте къщи в комплекс 'ОСТА Хоум' - дом заобиколен от природа, спокойствие и простор.

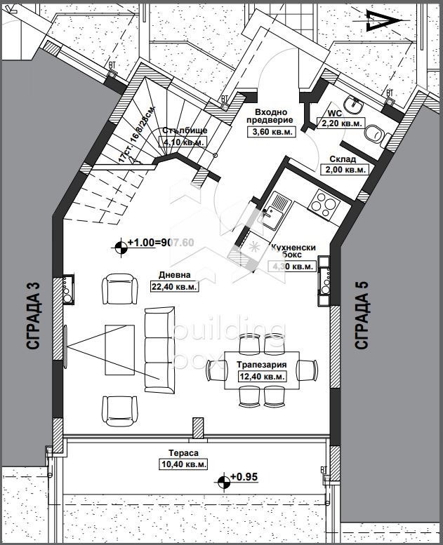
Къщата е със самостоятелен двор от 317 кв.м и с площ от 190,90 кв.м. Първото ниво се състои от: антре, склад, голяма дневна с трапезария и кухненски бокс, тоалетна и прекрасна веранда. Второто ниво: три самостоятелни спални, към една от които има дрешник и тераса, и две бани с тоалетни. На третото ниво: open space помещение с баня и тоалетна, което е подходящо за офис или четвърта спалня. Пред къщата има обособени две паркоместа.

Комплекс 'ОСТА Хоум' се състои от общо шест къщи, като всички са с по три етажа. Основното изложение на къщите е изток-запад.

В момента къщите са на етап пред Акт 15, като за изпълнението им са използвани висок клас материали. Във всяка от къщите ще има изцяло подово отопление, а спрямо предпочитанията на клиента, ще може да се отоплява на ток.

Акт 16 се очаква в средата на 2025г.

В комплекса ще бъде монтирана пречиствателна станция.

Билдинг Бокс предоставя безплатна консултация и кредитно съдействие при финансиране на избрания от Вас имот.
Оферта 14914
Преглеждания: 4
Другите търсят също
Препоръчани за теб
Цена:
1 310 406,10 лв 670 000 €
Цената е с включен ДДС