Продавам КЪЩИ в затворен к-с, град София, в.з.Горна баня → Обява 52539627

Продавам КЪЩИ в затворен к-с, град София, в.з.Горна баня
гр. София, Горна баня Наблюдавай

Публикувана/обновена вчера в 18:33 ч.


Квадратура
338 кв. м.
Цена на кв.м.
1800 € кв. м.
Брой стаи
5
Брой етажи
3
Двор
250 кв. м.

Продавам КЪЩИ в затворен к-с, град София, в.з.Горна
баня

ОТ СТРОИТЕЛ/СОБСТВЕНИК !!!

608 400 EUR/
1 189 927 лв.

(1 800EUR/ 3 520 лв./m2)
Цената е с ДДС (Гъвкава схема на плащане)
Площ: 338 m2
Двор: 250-290 m2
Етажи: 3
Строителство: Тухла,

Експлоатация: Акт 15 до края на 2025 г., Акт 16
Март/Април 2026 г.

Описание на имота:

ВИСОК КЛАС МОДЕРНО СТРОИТЕЛСТВО!!! ЧИСТ
ВЪЗДУХ И ГЛЕДКИ КЪМ ВИТОША!!! СОБСТВЕН ОБОСОБЕН ДВОР!!! ПРОСТОРНИ И СВЕТЛИ
ПОМЕЩЕНИЯ!!! ПАНОРАМНА ТЕРАСА!!!


Всяка от къщите разполага със собствен двор с площ от 250 до 290 кв.м и е
решена на три надземни етажа и едно подземно ниво, осигуряващо индивидуално
паркиране за два автомобила. Разположението на жилищните и подземното ниво е
следното:

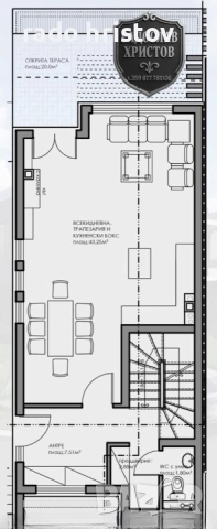
На ниво (-1) са разположени двоен гараж, склад,
котелно помещение, мокро помещение/перално, дрешник/килер, WC, с 67 кв.м.,

Първи (партерен) етаж : входно антре, санитарно помещение,
WC, просторна всекидневна с кухненски бокс,
която открива достъп до слънчева веранда тип английски двор, с 56 кв.м.,
открита тераса от 20 кв.м.

Втори етаж се състои от: три спални, като: спалня 1 (мастър бедрум) е с площ
от 18 кв.м и собствен дрешник; спалня 2 и спалня 3 всяка с площ от 15 кв.м.,
дрешник (складово помещение), две бани с
WC и две тераси с 7 кв.м.,

Трети етаж: входно антре, кабинет (спалня),(лятна кухня), баня с
WC
и просторна бонус тераса с панорамна
гледка, изключително подходяща за лятна кухня или зимна градина, с 19 кв.м. и
тераса от 22 кв.м.


Проектът включва девет двуфамилни къщи, в затворен комплекс, Всяка къща е
разделена на две идентични части с РЗП от по 338 кв.м. и прилежащи дворове с
площ от 250 до 290 кв.м.

В проекта за използвани
само материали от най-висок клас, което гарантира дълготрайност, стил и
висока енергийна ефективност. В къщите ще има вградено подово отопление,
собствена пречиствателна станция и термо помпа. Облицовката е от високо
качествен мрамор.

Къщите
се издават с Акт 16 по БДС. Строителят предлага довършителни ремонти на
преференциални цени и с материали по желание на клиента.

За огледи и допълнителна информация Радослав Христов- 0877 781106






Преглеждания: 222
Другите търсят също
Обяви на потребителя rado hristov Виж всички 5 обяви
Препоръчани за теб
Популярни търсения: продавам всичко
Цена:
1 189 926,97 лв 608 400 €